Bir Keşif Defteri Işığında Konya Kapı Camii’nin İnşa Süreci ve Mimari Özellikleri
The Construction Process and Architectural Characteristics
of Konya Kapı Mosque In the Light of a Discovery Book
Yrd. Doç. Dr. Hüseyin MUŞMAL *
Arş. Gör. Mustafa ÇETİNASLAN **
Özet
Kapı Camii, ilk defa 1658 yılında Mevlâna’nın torunlarından Konya Mevlevi dergâhı postnişini Pir Hüseyin Çelebi tarafından yaptırılmıştır. 1811 yılında harap olan ilk cami, Eşenlerli Köse Müftü adıyla bilinen Abdurrahman Efendi tarafından yenilenmiştir. Ancak bu yapı da, 1867 Konya Çarşısı yangınında tamamen yanmıştır. Bu tarihten sonra yaklaşık iki yıllık bir süreçte taş malzemeden yapılmış olan bugünkü cami inşa edilmiştir. Ticarî alan içerisinde bir platform üzerine taş malzemeden, avlusuz olarak inşa edilen ve kuzey cephesinde alt katına 8 adet dükkân yapılarak ticarî doku ile bütünleşmesi sağlanan Kapı Camii, Şerafeddin, Sultan Selim ve Aziziye camileri ile tarihî Konya çarşısının ve kent siluetinin en önemli öğelerinden birisidir. Bu çalışmada Kapı Cami’nin 1867 yangınından sonraki inşa süreci ele alınmıştır. Bu çerçevede öncelikle yangın sonrasında düzenlenen keşif defteri incelenmiş ve inşaatta kullanılacak malzemeler ile maliyetleri hakkında değerlendirmeler yapılmıştır. Yapının günümüzdeki durumu, plan ve süsleme özellikleri ayrı bir bölüm olarak ele alınmıştır. Çalışmanın son kısmında ise 1867 yılında çizilen planı ve keşif defterindeki veriler paralelinde genel bir değerlendirmeye yer verilmiştir.
Anahtar Kelimeler: Kapı Camii, Osmanlı Mimarisi, Devşirme Malzeme, Konya Çarşısı Yangını
Abstract
The Kapi Mosque was originally built by Pir Husein Chelebi, the Head of the Konya Mevlevi Lodge who was one of Mevlana’s grandsons, in 1658. This first mosque, which had become ruined by 1811, was renovated by Abdurrahman Effendi, also known as Kose Mufti of Esenler. However, this building was totally burned in the fire that destroyed Downtown Konya in 1867. After this date, the present day mosque of stone material was built in a period of almost two years. The Kapi Mosque was built from stone in a commercial area without a garden and it was integrated into the commercial district by building 8 shops on the underground floor on the northern side. Thus, it is one of the key elements of downtown Konya and the city skyline together with the Serafeddin, Sultan Selim and Aziziye Mosques. The present study investigated the construction process of the Kapi mosque after the fire in 1867. In this framework, firstly, the discovery book, which was arranged after the fire, was examined and assessments were made about the material to be used in the construction and their cost. The present state of the building and its plan and decorative properties were dealt with in a separate section. In the last section of the study, a general assessment was made in accordance with its plan, which was drawn in 1867, and the data in the discovery book.
Key Words: The Kapi Mosque, The Ottoman Architecture, Gathered Material, The Downtown Konya Fire
Giriş
Selçuklu döneminden itibaren Konya’da sur kapılarının çevresi zamanla sanat ve ticaret merkezi haline gelmiş, buralarda, hem dışarıdan gelen, hem de şehrin kendi sakinlerinin kolaylıkla buluşabileceği pazarlar kurulması ve dükkânlar açılması nedeniyle büyük çarşılar oluşmuştur1. Osmanlı hâkimiyetinde Konya çarşılarının bulunduğu merkez fazla yer değiştirmeden gelişim göstermiş ve bugünkü Vilayet Konağı’nın bulunduğu yerden Mevlana Türbesine kadar uzanan bölge, şehrin en önemli ticarî merkezi konumuna gelmiştir2.
Çarşı ve pazarlar, gerek satıcı ve gerekse alıcıların gün içinde zamanlarının çoğunu geçirdikleri önemli bir hareket alanını oluşturduğundan bu bölgelerde insanların alışveriş dışındaki bazı ihtiyaçlarını giderebilecekleri başka donatılara da yer verilmiştir. Bu yapıların ilk anda akla gelenleri, çeşme veya sebil, mescit veya cami gibi bazı sosyal ve dinî yapılardır. Bu yapıların sosyal fonksiyonlarının incelenmesi çalışmamızın sınırları dışında bulunmaktadır. Ancak inceleme konumuz olan Kapı Camii’nin3 Konya’nın merkezinde çarşı içinde, esnafların ve ahalinin ihtiyaçları doğrultusunda inşa edilmiş olması bu noktada önem arz etmektedir. Konya Kalesi’nin kapılarından Atpazarı ile Telli Kapıları arasında kaldığı için “Kapı Camii” ismiyle anılan yapının bulunduğu yer bugün Sarraflar Caddesi olarak bilinmektedir. Cami ilk defa 1658 yılında Mevlâna’nın torunlarından olan ve Konya Mevlevi Drgâhı postnişinlerinden Pir Hüseyin tarafından yaptırılmıştır4.
1811 yılında harap halde bulunduğu için Eşenlerli Köse Müftü adıyla bilinen Abdurrahman Efendi tarafından yenilenmiş olan cami, 1867 yılında Konya Çarşısı yangınında tamamen yanmış ve kullanılamaz hale gelmiştir6. Yangının ardından ise Eşenlerli Abdurrahman Efendi’nin torunu olan Abdurrahman Efendi ve halkın yardımı ile taş malzemeden yeniden inşa edilmiştir7.
28 Eylül 1867 Cumartesi sabahı vuku bulan yangının çıkış noktası Konya çarşısının ortasında bulunan Kapı Cami’nin bitişiğinde yer alan çubukçu dükkânı civarıdır. Bu konuda yapılan araştırmalarda çubukçu dükkânının altında bulunan kahve ocağındaki mangal ateşinin dükkân sahibi tarafından söndüğü düşünülerek kabasıyla bırakılmasının yangına sebep olduğu ifade edilmektedir. Sabahın erken saatinde başlayan yangın rüzgârın da şiddetiyle kısa sürede çevreye yayılmış, ateş öncelikle yangının başladığı dükkâna bitişik bulunan attar ve bakkal dükkânları ile ahşap direkli olan Kapı Cami’ne sıçramıştır8. Hadiseye şahit olanların ifadelerinden, önce alevlerin çepeçevre sardığı Kapı Cami’nin tavanının büyük bir gürültüyle çöktüğü ve bundan kısa bir süre sonra da Yüksek Cami’nin9 tahta minaresi ile tavanının yine aynı şekilde korkunç bir gürültüyle yerle bir olduğu anlaşılmaktadır. Bu durum ahali arasında büyük bir korkuya sebep olmuştur10. Yangın neticesinde Konya çarşısında 872 büyük ve küçük dükkânla beraber Konya’nın iki önemli camisinin de kül olması ahaliyi derinden etkilemiş olmalıdır. Nitekim Konyalı âşıklardan Matlubî11 tarafından söz konusu yangını anlatan bir destan dahi yazılmıştır. Destandaki ifadelerden, camilerin yanmasının ahali üzerinde derin etkiler bıraktığı anlaşılmaktadır12.
Yangın neticesinde meydana gelen hasar ve zararı tespit etmek, yanan vakıf ve şahıs dükkânlarında yapılacak inşaatlar için özellikle kereste olmak üzere gerekli malzemenin teminini kolaylaştırmak ve yapılacak binaların “Ebniye nizamnamesine uygun olarak” inşa edilmesini temin etmek maksadıyla hususi bir imar komisyonu teşkil edilmiştir13. Bu çerçevede vilayet mühendisi Yüzbaşı Hadi Efendi ile mimar kalfaları ve vakıf görevlilerinden oluşan bir heyet tarafından 28 Eylül 1867 tarihinde yangın mahallinde inceleme yapılarak Kapı Cami’nin yeniden inşası için bir keşif defteri hazırlanmıştır14. Aşağıda birinci bölümde söz konusu keşif defteri ile Başbakanlık Osmanlı Arşivinden elde edilen diğer vesikalardan yararlanılmak suretiyle Kapı Cami’nin üçüncü inşa süreci ele alınacaktır.
I- KAPI CAMİ’NİN İNŞASI
A-İnşaat Süresi
1867 yangınından sonra yeniden inşa edilen Kapı Cami’nin inşaatına tam olarak ne zaman başlandığı ve yapının ne zaman tamamlandığı hakkında kesin bir tarih tespit edilememiştir. Ancak bu konudaki yazışmalar ışığında bazı tahminler yürütmek mümkündür.
Yukarıda ifade edildiği gibi 28 Eylül 1867 tarihinde yanmış olan caminin yeniden inşa edilmesi maksadıyla aynı gün bir keşif defteri hazırlandığı bilinmektedir. Bununla birlikte gerek caminin inşa edilmesi amacıyla yapılan yazışmalardan sonuç alınamaması ve gerekse yangının gerçekleştiği dönemlerde inşaat mevsiminin sonra ermesi nedeniyle 1867 yılında cami inşaatına başlanamamıştır. Nihayet yeni inşaat mevsiminin başlaması ve caminin inşası hakkındaki yazışmaların neticelenmesiyle birlikte 1868 yılı bahar aylarında cami inşaatına başlanabilmiştir1 . Böylece 1868 ve 1869 yılı inşaat mevsiminde çalışılmak suretiyle 1869 yılı sonlarında Kapı Caminin inşası tamamlanmıştır16. Ancak caminin inşa aşamalarının nasıl geliştiği hakkında bir bilgi tespit edilememiştir. Bu nedenle caminin inşa edileceği sahanın kazılması ve temellerin hazırlanması veya kaba inşaatının tamamlanması sürecinin ne kadar olduğu hakkında değerlendirme yapmak mümkün olmamıştır. Üstelik yangından zarar gören eski yapının temellerinin, caminin yeniden inşa edilmesi aşamasında kullanılıp kullanılmadığı hakkında da bir bilgiye rastlanılmamıştır. Ancak aşağıda bu süreçte yaşanan gelişmeler hakkında bazı değerlendirmeler yapılacaktır.
B-İnşaat Süreci
Kapı Camii, XIX. yüzyılın ortalarında 1319 dükkânın yer aldığı Konya çarşısının ortasında merkezî bir konumda bulunmaktadır17. Konya çarşısında faaliyet gösteren esnaflar vakit namazlarının yanı sıra özellikle Cuma namazlarında Kapı Camii ile beraber yine aynı mevkide bulunan Yüksek Camii olarak da anılan Şeyh Ahmet Efendi Camiini kullanırlardı. Ancak 1867 yangını ile her iki caminin de kullanılamaz hale gelmesi nedeniyle esnaflar bu konuda ciddi sıkıntı içerisine girmişlerdir. Bunun üzerine vakit kaybetmeden çarşı esnafı vilayet nezdinde girişimde bulunarak her iki caminin de bir an önce yapılmasını talep etmişlerdir. Bu çerçevede Konya Vilayet Meclisinin Kapı Cami’nin inşası için yaptırdığı keşfe ait defter ile vilayet meclisi tarafından düzenlenen mazbata 5 Ekim 1867 tarihinde İstanbul’a gönderilmiş ve söz konusu evraklar 23 Ekim 1867 tarihinde Evkaf-ı Hümayûn Nezaretine havale edilmiştir18.
Vilayet mazbatasında inşa edilecek camilerin çarşı ortasında ve insanların yoğun olarak bulunduğu bölgelerde olduğu ifade edilerek, yakın çevrede başka cami bulunmadığından bu camilerin bir an evvel inşa edilmesi talep edilmiştir19. Ayrıca camiye ait vakıfların yeterli geliri olmadığı, eskiden beri caminin mum ve revgan masrafları ile tamir masraflarının cami civarında ve bitişiğinde bulunan mağaza ve dükkânların geliri ile ahalinin yardımlarından karşılandığı ifade edilmiştir. Ancak bu dükkânlar dahi yangın sırasında tamamen kül olduğundan vakfa gelir sağlayacak herhangi bir yapı kalmadığı ve bu nedenle camilerin hazine tarafından inşa edilmesinin zarurî olduğu bildirilmiştir20.
Vilayet tarafından yapılan müracaata rağmen devlet merkezinden bir süre olumlu cevap alınamamış ve bu nedenle 21 Şubat 1868 tarihinde yeniden bir müracaat yapılmıştır21. Bu müracaatlar neticesinde Evkaf-ı Hümayûn Nezareti tarafından 22 Nisan 1868 tarihinde bir karar alınmıştır. Kısa sürede Konya Vilayeti’ne bildirilmiş22 olan karar metninde “Kapı Camii gibi hayrat vakıflarının ihtiyaçları ve tamirlerinin kendi gelirlerinden karşılanması gerektiği ve ayrıca hazinenin herhangi bir yardımda bulunabilecek durumda olmadığı” ifade edilmiştir23. Bu süreçte esnaf ileri gelenleri ile ulema ve eşraftan Nakipzâde Abdurrahman Efendi, Hacı Mehmet Efendi, Hacı Veli Efendi, Türkmenzâde Hacı Ali ve Karahacı Mehmedzâde Hacı Abdurrahman adındaki kişilerin katılımıyla bir meclis oluşturulmuş ve bu meclisin önderliğinde ahaliden toplanacak yardımlarla Kapı Cami’nin inşa edilmesi düşünülmüştür. Ancak yardım toplanacak olan eşraf ve esnaf çarşı yangını neticesinde dükkânlarını ve malzemelerini tamamen kaybetmiş olup zaten perişan bir durumdadır. Bu nedenle devlet merkezine gönderilen mazbatalarda, caminin inşası için, o sıralarda harap halde bulunan kale taşlarından alınması ve inşaatta kullanılacak kerestelerin çevre kasaba ve köylerden tedarik edilmesi yoluna gidilirse, inşa maliyetinin daha az olacağı ifade edilmiştir. Ayrıca gerek şehirden ve gerekse Konya çevresindeki köylerden 400.000 kuruş civarında yardım toplanabileceği öngörülmüş, ancak kalan kısmın hazineden karşılanması gerektiği ifade edilmiştir24.
Konya Vilayeti’nden yapılan bu müracaatlara merkez tarafından bazı gerekçeler gösterilerek olumsuz cevap verilmiştir. İstanbul’dan gönderilen cevaplarda ahaliden ne kadar yardım toplanabileceğinin önceden tahmin edilemeyeceğinden hazineden alınacak yardımın ne kadar olacağının tayin edilmesinin mümkün olmadığı ifade edilmiştir. Bununla birlikte yardımların sadece Konya halkından ve Müslümanlardan toplanacağı öngörülerek, bu durumda sıkıntıda olan ahalinin dahi yardım etmek durumunda kalacağı, caminin inşası için gereken miktarın bir kısmının toplansa bile kalanının mal sandığından karşılanmasının gerekeceği üzerinde durulmuştur25 . Bütün bunlara mahal kalmaması için Konya çarşısında yanmış olan camilerden hangisinin bir an evvel yaptırılması memleketçe uygun görülürse onun tercih edilerek camilerden birinin inşasının şimdilik tehir edilmesi istenilmiştir. Nihayet ahaliden toplanacak yardımların tahmin edilen düzeye ulaşması halinde, yapılması tercih edilen caminin inşasına kubbeli ve kâgir olarak başlanması ve gereken miktarın kalanının mahalli mal sandığından karşılanmasının uygun olduğuna karar verilmiştir26. Neticede bu süreçte Yüksek Cami’nin (Aziziye) inşası tehir edilmiş ve ahaliden toplanacak yardımlar ile Kapı Cami’nin inşasına başlanmıştır. Aşağıda söz konusu yapıya ait 28 Eylül 1867 tarihli keşif defteri detaylı bir şekilde incelenecektir. Ancak yangından hemen sonra tertip edilen keşif defterinde inşaatta kullanılacak malzemeler ve bunların maliyetleri hakkında tahmini dökümlere yer verildiğinden bu konuda yapılan değerlendirmeler kesin hüküm ifade etmemektedir.
1-Caminin İlk Keşfi ve Muhtemel Planı
1867 yılında yanmış olan eski yapının planı ve mimarisi hakkında şimdilik herhangi bir bilgi elde edilememiştir. Ancak binanın ahşap malzemelerden müteşekkil olduğu bilinmektedir27. Bununla birlikte 1869 yılında tamamlanan camiye ait planın oluşturulmasında eski yapının örnek alındığı düşünülebilir. Burada yapılacak olan değerlendirmeler yeni yapının inşa süreci hakkında olacaktır. Dolayısıyla bu kısımda caminin inşası, 1867 yılında çizilen planı ve keşif defterindeki veriler doğrultusunda yapılacak, yapının günümüzdeki durumu ve özellikleri ikinci bölümde ele alınacaktır. Çalışmanın üçüncü kısmında ise genel bir değerlendirmeye yer verilecektir.
Caminin ilk keşfinin vilayet mühendisi Hadi Efendi ve maiyetinde bulunan mimar kalfaları ile vakıf görevlilerinden oluşan bir heyet tarafından yapıldığı bilinmektedir. Adı geçen vilayet mühendisi Yüzbaşı Ahmet Hadi Efendi, bu tarihlerde vilayet yollarının tesviyesi maksadıyla teşekkül ettirilmiş olan komisyonun üyesidir28. Vilayet mühendisi Ahmet Hadi Efendi, yangından hemen sonra caminin keşfi için görevlendirilmiş ve 18 Eylül 1867 tarihinde bir keşif defteri hazırlamıştır29. Ancak 1869 yılında da vilayet mühendisi olarak görev yapan Yüzbaşı Ahmet Hadi Efendi’nin cami inşaatında aktif olarak sorumluluk alıp almadığı hakkında şimdilik herhangi bir bilgi tespit edilememiştir.
2-İnşaatta Kullanılan Malzemeler ve Bunların Maliyeti
28 Eylül 1867 tarihli keşif defterinde camide kullanılan malzemelerin çeşit ve miktarlarının ayrıntılı bir şekilde dökümü yapılmıştır. Buna göre caminin yapımında ahşap malzemelerle birlikte taş, kum, tuğla, demir, kurşun, kireç, kamış gibi malzemeler kullanılmıştır.
a-Taş, Kum, Tuğla
Daha önce ifade edildiği gibi ahşap malzemelerden müteşekkil olan Kapı Camii, 1867 yangınında alevlere teslim olmuş ve kısa sürede yerle bir olmuştur. Yaklaşık 4 saat süren yangın sırasında Kapı Camii ile birlikte Konya çarşısında bulunan ve çoğunlukla ahşap malzemelerden yapılmış olan 872 adet dükkân dahi kül olmuştur. Çok büyük hasarlarla neticelenen Konya Çarşısı yangını, bu dönemde inşa edilen yapıların fiziksel özelliklerinin ve yapı malzemelerinin değişiminde önemli bir dönüm noktası olmuştur. Nitekim yeni çarşıda inşa edilen dükkânların büyük bir kısmı kesme taştan yapılmış ve üstleri tonozla örtülmüştür30. Benzer şekilde, gerek vilayet yetkileri ve gerekse ahali ileri gelenleri tarafından yapılan taleplerde yeniden inşa edilecek olan Kapı Cami’nin de kâgir ve kubbeli olarak yaptırılması istenmiştir. Bu nedenle 1867 yılından sonra yapılan Kapı Cami’nin inşasında kâgir yapıların vazgeçilmez malzemeleri olan taş, tuğla ve kum gibi malzemeler yoğun olarak kullanılmıştır.
Keşif defterinde camide kullanılacak olan malzemelerin miktar ve kıymetleri belirtilmesine rağmen, bu malzemelerin nasıl temin edileceği hakkında bir beyan bulunmamaktadır. Ancak bu konuda bazı değerlendirmeler yapmak mümkündür.
Osmanlı döneminde binaların esas inşa malzemesini oluşturan taşın çıkartılması, nakledilmesi, işlenmesi ve yerine konması gibi aşamalarda sarf edilen emeğin fazlalığı ve bu nedenle ortaya çıkan maliyetin yüksekliği insanları inşaat mahalline yakın yerlerdeki eski eserlerin taşlarından faydalanma yoluna sevk etmiştir31. Bu çerçevede Osmanlı döneminde Konya çevresinde inşa edilen bazı eserlerde Konya’da bulunan eski yapıların taşlarından istifade edildiği anlaşılmaktadır32. Nitekim 1673 yılında Şeyh Ahmet Efendi Camii ve Hamamının inşası sırasında Sultan Alâeddin Sarayı harabesinden 106 araba ve 2500 merkep yükü taş alınmış olması bu duruma dair bir örnek olarak gösterilebilir33. Benzer şekilde Konya Kalesi’nin taşları kullanılarak bugünkü hükümet konağının yaptırıldığı yönünde bir kanaat bulunmaktadır34. Üstelik Kapı Camii ile ilgili vilayet yetkilileri tarafından merkezle yapılan yazışmalarda, inşa maliyetinin düşürebilmesi maksadıyla35 , camide kullanılacak olan taşların o sıralarda harap hale gelmiş olan Konya Kalesi’nden temin edilmesi yoluna gidilebileceği ifade edilmiştir36. Bununla birlikte Kapı Cami’nin inşasında kullanılan taşların ne kadarının kale kalıntılarından alındığı veya başka bölgelerden taş getirilip getirilmediği hakkında herhangi bir bilgi tespit edilememiştir. Ancak Konya’da yapılan tarihi eserlerde genellikle Sille ve Gödene taşlarının kullanıldığı bilinmektedir. Bu taşlar da Sille’nin Takkeli dağ eteklerindeki taş ocakları ile güneybatısındaki Gödene Köyü’nden karşılanmaktaydı37. Diğer taraftan Konya’daki bazı binaların yapılması sırasında Konya dışındaki taş ocaklarından da istifade edilmiştir38.
Kapı Cami’nin inşasına ait keşif defterinde inşaatta kullanılması muhtemel taş miktarı 28.000 araba yükü olarak tespit edilmiştir. Fakat taşların nakledileceği arabanın niteliği hakkında bir bilgi verilmemiştir. Araba ifadesinden kastedilen öküz veya eşek arabası olmalıdır. Zira aynı yüzyılın başında Yusuf Ağa Kütüphanesi inşası için yapılan taş nakliyatında bir çift öküzle veya eşekle çekilen arabaların kullanıldığı bilinmektedir39. Bu durum Konya şehrinde, inşaat sektöründe hizmet veren arabacılığın önemli bir alt yapıya sahip olduğunu göstermektedir. Benzer şekilde Yusuf Ağa Kütüphanesi’nden yaklaşık 70 yıl sonra inşa edilen Kapı Cami’nde kullanılacak olan taşların temininde ve nakliyesinde eşek, camız veya öküzle çekilen taş arabalarının kullanıldığı düşünülebilir. Bununla birlikte cami inşaatında kullanılan taş miktarı hakkında da tahmin yürütmek mümkündür. Bir öküz arabasına yüklenebilecek taşın ortalama 1500 kg civarında olduğu düşünülürse40, Kapı Camii inşaatında yaklaşık 42.000 ton taş kullanıldığı söylenebilir. Diğer taraftan nakliye ve hademe ücretleri dâhil olmak üzere camiye yapılan her sefer başına biçilen kıymetin 160 pare (4 kuruş) olması nedeniyle41, camide kullanılan taşların toplam maliyeti 112.000 kuruş olarak ortaya çıkmaktadır42.
Kapı Camii inşaatında kullanılan önemli malzemelerden diğeri de tuğladır. Yapılarda tuğlanın kullanımı iki genel amaca uygun olarak tercih edilmektedir. Bunlardan ilki yalnız yapısal amaca yönelik olarak binanın beden duvarlarında, diğeri ise yapının iç mekânı, üst örtüsü veya minaresinde hem yapı hem de süsleme malzemesi olarak kullanılmasıdır43. Kapı Camii inşaatında kullanılan tuğla ve kumun nereden temin edildiği veya nasıl nakledildiği hakkında bir bilgi bulunmamaktadır. Bu konuda bilinenler hatıl, pencere alınlıkları ve minare için talep edilen tuğla maliyetinin 18.000 kuruş, kum maliyetinin ise 31.500 kuruş olarak hesaplandığıdır. Neticede camide kullanılan taş, tuğla ve kum gibi malzemelerin muhtemel maliyeti 161.500 kuruş olarak tespit edilmiştir44.
b- Kurşun, Kireç, ve Demir
Kapı Camii inşasına ait keşif defterinde inşaatta kullanılacak olan kireç, kurşun ve demir gibi malzemelerin miktar ve maliyetleri hakkında da bilgi verilmiştir. Bu malzemelerin hangi alanlarda kullanılacağı hakkında bir beyan bulunmamakla birlikte, söz konusu malzemelerin inşaatın hangi bölümlerinde kullanıldığını tahmin etmek mümkündür. Bu malzemelerden kurşun, yapıyı yağmur ve kar gibi olaylardan korumak maksadıyla özelikle binaların üst örtülerinde kullanılırdı.
Konya ve çevresinde inşa edilen yapılar için gerekli olan kurşunların vilayet dâhilinde veya yakınında bulunan maden ocaklarından temin edilmesi yoluna gidilirdi. Nitekim Konya Vilayeti’ne bağlı Beyşehir Sancağı dâhilinde bulunan Bozkır Madeni’nde altın ve gümüşle birlikte kurşun da çıkarılmaktaydı45 . Özellikle XVIII. yüzyılda madenin açık olduğu dönemlerde, Konya’da yapılan bazı eserlerin yapımında Bozkır Madeni’nden çıkarılan kurşunlardan istifade edildiği bilinmektedir46. Ancak XIX. yüzyılın ortalarında Bozkır’da maden üretimine son verildiğinden47 bölgede ortaya çıkan kurşun ihtiyacı Konya Vilayet dâhilindeki Bulgar Dağı ve Bereketli maden ocaklarından karşılanmaya başlanmıştır48. Bu çerçevede Kapı Camii inşaatında kullanılan kurşunlar, nakliye ve döşeme masrafları ahaliden alınması koşuluyla Bulgar Dağı ve Bereketli madeninden karşılanmıştır49.
Kapı Cami’ne ait keşif defterine göre camide kullanılacak olan kurşun miktarı 1400 kıyye50 yani yaklaşık 1796 kg’dır. Bu miktardaki kurşunun maliyeti ise 7000 kuruş olarak tahmin edilmiştir. Bunun kurşunun satın alınması ve nakliye masraflarının da içinde bulunduğu bir maliyet hesaplaması sonucunda tespit edildiği anlaşılmaktadır 51.
Keşif defterinde özellikle harcın hazırlanmasında ve inşaatın bazı bölümlerinde kullanılmak üzere gerekli olan kireç miktarına da yer verilmiştir. Defterde kirecin nasıl ve nereden temin edildiği hakkında bir bilgi bulunmuyorsa da Konya ve çevresinden temin edildiği düşünülebilir 52. İnşaatta kullanılacak kireç miktarı 420.000 kıyye, yani yaklaşık 538.776 kg olarak, maliyeti ise 105.000 kuruş, demir miktarı ise 6000 kıyye, yaklaşık 7700 kg ve maliyeti 18.000 kuruş olarak tahmin edilmiştir. Demirin camide bağlayıcı eleman (kenet) olarak taşların arasında ve pencere şebekelerinde kullanıldığı anlaşılmaktadır53.
c-Boya, Nakış ve Sıva
Kapı Camii inşaatına ait keşif defterinde inşaatta boya, sıva ve nakış işleri hakkındaki maliyetlere de yer verilmiştir. Buna göre caminin iç ve dışının sıvanması için 32.400, nakış ve boyası için ise 22.300 kuruş maliyet çıkarılmıştır. Ancak bu işleri yapan boyacı, sıvacı veya nakkaşlar hakkında herhangi bir bilgi verilmemiştir. Diğer taraftan caminin altında bulunan dükkânların dülgeriye ve sıva masrafları olarak 10.800 kuruşluk bir maliyet tahmin edilmiştir.
d-Ahşap
1867 yılı çarşı yangınında Kapı Cami’nin yanmasından sonra yapılan keşif neticesinde yeni caminin kâgir olarak yaptırılması planlanmış ve keşif defterinde duvarları kâgir olmak koşuluyla iki proje üzerinden maliyet hesabı yapılmıştır.
Bu projelerden ilki caminin duvarlarının kâgir, üst örtüsünün ahşaptan yapılmasıdır. Diğeri ise duvarlarının kâgir ve üstünün kâgir kubbeli olarak bina edilmesidir. Her iki proje hakkında ayrı ayrı maliyet hesabı çıkarıldığından burada her iki maliyet hesabına da değinilecektir. Her iki projede de caminin taban tahtasının maliyeti 21.600 kuruş olarak tespit edilmiştir. Bu miktara ilave olarak, caminin üst örtüsünün ahşap malzemelerden yapılması halinde kullanılacak olan kamış, kandıra, öz ve tahtaların maliyeti 52.280 kuruş olarak hesaplanmıştır. Diğer taraftan kubbesi kâgir olursa üzerine yapılacak kubbe ve tavan maliyeti 125.000, kubbelerin sıva maliyeti ise 18.000 kuruş olarak tespit edilmiştir. Şu halde caminin kubbelerinin kâgir olarak yapılması durumunda yaklaşık 90.000 kuruşluk ek bir maliyet oluşacaktır. Ancak günümüzdeki yapı incelendiğinde caminin üst örtüsünün bağdadi kubbeli olarak yapıldığı, bunun da maliyeti azaltmaya yönelik olduğu anlaşılmaktadır 54.
3- Caminin Diğer Birimleri ve Unsurları
Cami inşaatına ait keşif defterinde, yukarıda ifade ettiğimiz kalemlerin dışında caminin bazı bölümlerinin masrafına dair de tespitler yapılmıştır. Bunlardan ilki caminin en önemli unsurları olan mihrap, minber, mahfil ve kürsü hakkında yapılan tespittir. Ancak bununla birlikte söz konusu bölümlerin, hangi malzemelerden veya ne surette yapılacağı hakkında bir bilgiye yer verilmemiş, sadece bu bölümlerin yapılması için gerekli olan miktarın 13.450 kuruş olduğu ifade edilmiştir. Diğer taraftan camide inşa edilecek minarenin 30.000 kuruşa, caminin 68 adet penceresi ile 3 adet kapısının 10.250 kuruşa, saçaklarının ise 6150 kuruşa mal olacağı da belirtilmiştir. Yine taş direk masrafının da 18.000 kuruş civarında olacağı tahmin edilmiştir.55
4-İnşaatta Çalışan Usta ve İşçilerin Ücretleri
Yukarıda camiye ait keşif defterinde inşaatta kullanılacak olan malzemeler ve bunların maliyetleri hakkında bazı bilgiler verildiği ifade edilmişti. Bunların yanı sıra camiye ait keşif defterinde söz konusu malzemelerin işlenmesinde ve inşaatın yapılmasında çalışacak olan usta ve işçilerin ücretleri hakkında da bazı tespitler yapılmıştır. Bu bilgilerden anlaşıldığına göre cami inşaatında taş ustaları, neccarlar, demirci ustaları ile amelelerden istifade edilecektir. Ancak, elimizde inşaat defteri olmaması nedeniyle ustaların sayısı, nereden getirildiği veya inşaatta Rum veya Ermeni ustaların çalışıp çalışmadığı hakkında bir bilgi tespit edilememiştir 56. Bu konuda bilinenler ustaların alacakları ücret ve yapacakları iş yüküyle sınırlıdır. Bunlardan taş ustalarının alacakları ücret, 4500 yevmiye üzerinden yevmiye başına 14 kuruş (560 pare) hesabıyla toplam 63.000 kuruş olarak tahmin edilmiştir.
Kapı Camii keşif defterinde inşaatta kullanılacak iskelelerin kurulması işleminden sorumlu olan neccarların iş yükü ve ücretleri hakkında da bir tespit yapılmıştır. Bu tespite göre iskelerinin kurulması sürecinde neccarlar 600 yevmiyelik bir iş yüküyle yevmiye başına 12 kuruş, toplamda ise 7200 kuruş alacaklardır. Diğer taraftan Kapı Cami’nin demir işini yapmış olan ustaların alacağı ücret ise 6500 kuruş olarak ifade edilmektedir. Bununla birlikte caminin altına yapılmış olan dükkânların yapı ve sıva maliyeti ise 10.800 kuruş olarak tespit edilmiştir. Bu durumda Kapı Cami’nin inşasında çalışan usta ve işçilere tahsis edilen miktarın 138.500 kuruş olduğu anlaşılmaktadır. Cami inşaatında çalışan ustaların sayıları hakkında, inşaatın süresi ve iş yükü bilgilerinden hareketle bazı tahminler yürütmek mümkündür. Ancak inşaat aşamalarının seyri ve mevsimlerin gereklerine göre çalıştırılan işçilerin sayılarında değişiklikler yaşanabileceğinden bu yönde bir tahmin yapılmamıştır.
5-Cami İnşaatının Toplam Maliyeti
Cami inşaatına ait keşif defterinde dökümü yapılan kalemler üzerinden bir hesap çıkarılması gerekirse, duvarları kâgir ve üst örtüsü ahşap malzemelerden yapıldığında caminin 654.430 kuruşa mal edilebileceği, duvarlarının kâgir ve üst örtüsünün kubbeli olarak yapılması halinde ise maliyetin 745.150 kuruşa yükseldiği anlaşılmaktadır.
Yukarıda ayrıntıları verilen keşif defterindeki maliyet hesaplamaları bu şekilde olmakla birlikte, arşiv belgelerindeki yazışmalardan cami inşaatının yaklaşık 300.000 kuruşa mal edildiği anlaşılmaktadır. Bu hesabın yapıldığı dönemde caminin üzerine dökülecek kurşunların henüz yapılmamış olması nedeniyle kurşun masraflarının toplam maliyete dâhil edilmediği görülmektedir. Ancak caminin inşası için yapılan keşifte tespit edilen miktarın 654.000 civarında olduğu halde inşaatın tamamlanmasından sonra ortaya çıkan maliyetin 300.000 civarında olması izah edilmesi gereken bir husus olarak öne çıkmaktadır. Bu durumda, keşfin yapıldığı tarihte masrafların hazineden karşılanacağı düşünülerek bir maliyet hesabı yapıldığı ancak, bu süreçte yaşanan bazı gelişmeler nedeniyle caminin ahaliden toplanan yardımlarla inşa edilmesi zaruretinin ortaya çıkması nedeniyle maliyetin düşürülmüş olma ihtimali göz önüne alınmalıdır. Zira 1867 yılında Konya arşısında 872 adet dükkân kül olmuş ve camiye yardım edebilecek nitelikteki esnafların büyük bir kısmı sıkıntı içerisine düşmüştür. Bu nedenle ahaliden toplanabilecek miktarın yetersiz kalması ihtimaline karşı cami maliyetinin düşürülmesi maksadıyla, maliyet hesabında önemli bir yekûn teşkil eden taş malzemenin, ikinci bölümde ortaya konulacağı gibi, Konya ve çevresindeki eski yapılardan karşılanmış olduğu düşünülebilir. Bununla birlikte caminin maliyetinin düşürülmesi maksadıyla, keşif defterinde ortaya konulan planın inşa sürecinde ayniyle uygulanamadığı da ihtimal dâhilindedir. Bu konuda kesin olarak bilinenler ise gerek cami inşaatında harcanan 300.000 kuruşun ve gerekse kubbelerde kullanılan kurşun masrafının ahaliden toplanan yardımlardan karşılanmış olduğudur 57.
II. YAPININ TANITILMASI:
Daha önce ifade edildiği gibi asıl adı “İhyaiyye” olan ancak, Konya Kalesinin Atpazarı Kapısı ile Telli Kapısı arasında bulunduğu için “Kapı Camii” adı ile tanınan yapı, Konya çarşısının merkezinde, ticarî faaliyetin kalbi sayılabilecek bir alanda yer almaktadır. Çarşı dokusu içerisinde bir platform üzerine inşa edilen ve altında dükkânların yer aldığı Kapı Camii, Şerafeddin, Sultan Selim ve Aziziye camileri ile tarihî Konya çarşısının ve kent siluetinin en önemli öğelerinden birisidir.
Cami, ticarî alan içerisinde yer aldığı için avlusuz olarak inşa edilmiş ve kuzey cephede alt katına 8 adet dükkân yapılarak, hem ticarî doku ile bütünleşme sağlanmış, hem de camiye gelir kazandırılması amaçlanmıştır. Son cemaat yerinin altında yer alan ve birer kapı ile kuzeye açılan dükkânlara ilave olarak daha sonraki yıllarda, caminin kuzeybatı köşesine büyük bir dükkân alanı daha eklenmiştir. Bu dükkânın batısında da üzeri kırma çatı ile örtülü bir şadırvan bulunmaktadır.
Konya’da platform üzerinde inşa edilmiş birkaç yapıdan 58 biri olan Kapı Cami’nin merdivenlerle ulaşılan üç girişi bulunmaktadır. Kuzeyde yer alan ana giriş, dükkânların oluşturduğu alana bakmakta olup, burada 10 adet mermer sütunla taşınan son cemaat yeri bulunmaktadır. Batı girişi, dükkânların arasında kalan ufak bir meydana açılırken, doğu girişi ise caminin hemen yanından geçmekte olan yola (Sarraflar Caddesi) açılmaktadır. Bununla birlikte doğu ve batı girişleri, cephenin tam ortasında değil, kuzeye yakın olarak yapılmışlardır. İki cephe arasında oluşan kot farkından dolayı doğu cephede 5 basamaklı merdiven yapılırken; batı cephede 8 basamaklı merdiven yapılmış ve böylece arazinin durumundan kaynaklanan eğim sorunu da çözülmüştür.
A-Dış Cephe
Yapının batı girişi, caminin beden duvarından hafifçe içeri alınmış dikdörtgen biçimli bir alanla belirlenmiştir. Ayrıca dikdörtgenin üst köşelerine iki adet akant başlık yerleştirilmiştir. Burada basık kemerli giriş açıklığının üzerinde dairevi formlu ikinci kat penceresi bulunmaktadır. Diğer taraftan aynı pencere uygulaması doğu taç kapıda ve mihrabın üzerinde de yer almaktadır. Basık kemerli giriş açıklığının önüne bir sundurma yapılmış olup, bu sundurma basık kemerle dairevi formlu pencere arasında kalan inşa kitabesinin görülmesini neredeyse imkânsız hale getirmiştir (1. Foto).
Altı satırdan oluşan ve Konyalı Şair Şevki59 tarafından kaleme alınan kitabe, Sülüs hatla mermer üzerine yazılmıştır (2. Foto):
Pîr Hüseyin nesl-i pîr kıldı binâsın ibtidâ
Anda İslâm, eyledi Hakk’a salât ile du ‘â
Sâniyen Müftî Eşenlerlioğlu i’mâr eyledi
Hâkezâ anda niçe sâl ettiler farz-ı edâ
Âteş-i aşk-ı Hüdâ erdi vücûd iklîmine
Mahv-ı mahz oldu, teveccüh eyledi Hakk’dan yana
Ehl-i hayrât sa‘y edüp cem‘ oldular bi’l-ittifâk
Dikdiler râh-ı ilâhîde bu meydâna livâ
Kıblegâh-ı mü ’minin revnak bulur tâ haşre dek
Çün kıy âmetden bekâ göstedi şer‘-i Mustafâ
Şevkî60 ke’ş-şemsi’d-duhâ 61 buldu bu cevher târîhi
Serfürû kılsûn revâ ehl-i sücûda es-salâ
Batı giriş açıklığının kuzeyinde, yapıya sonradan ilave edilmiş olan alt katında dükkânların ve bunların üstünde cami yardımcı hizmet mekânlarının yer aldığı bir birim bulunmaktadır (3. Foto). Ancak bu bölüm caminin görünüşünü olumsuz yönde etkileyen bir birimdir.
Doğu cephesinde yer alan giriş açıklığı daha sade olup, basık kemerli giriş açıklığını yağmur ve kardan korumak için bir sundurma da buraya yapılmıştır (4. Foto). Bu sundurmanın üzerinde ikişerli kartuşlar halinde dört satırdan oluşan ve Ta’lik hatla yazılmış inşa kitabesi yer almaktadır (5. Foto). Kitabenin metni şöyledir:
İlahî lütfun ihsân et bu câmi’ çok rekîz olsun
Ahâlisini ma’mûr kıl ki günden güne mezîz olsun
Var idi bunda bir ma’bed Eşenlerlüoğlu bânisi
O nâr-ı ‘aşkla yanup ki haşre dek hezîz olsun
Yine halk eyledi Mevlâ nâzirin bizlere fazla
Ana sa’y eyleyen ihvân cihâneynde remîz olsun
Sezâ altun kalemle yaz bu ma’bed târîhin fahrî
Namâzını cemâ’ atle kılan mü min azîz olsun 1285 62
Girişin kuzeyinde tek şeref eli minare, onun da kuzeyinde abdest muslukları bulunmaktadır (6. Foto). Minarenin kaidesi ve küp bölümü kesme taştan yapılmışken, gövde ve şerefe bölümleri tuğladan yapılmıştır. Minarenin kaide bölümünde üç adet turkuaz renkli çini plaka yer almaktadır. Bu uygulama özellikle Anadolu Selçuklu Sultanlığı döneminde inşa edilmiş olan minarelerdeki zengin çini kullanımına bir öykünme olarak dikkat çekmektedir.
Minarenin yanında yapıya daha sonra ilave edilmiş abdest muslukları yer almaktadır. Muslukların üzerinde Ta’lik hatla yazılmış inşa kitabesinde “Mimarı Süleyman Asaf, sene 1339-1342” yazılıdır (7. Foto). Kitabeye göre çeşme, 1920-23 yılları arasında Mimar Süleyman Asaf tarafından camiye bitişik olarak inşa edilmiştir. 12 musluklu olan ve mermer malzemeden yapılmış abdest alma yerinin üstü kurşunla kaplı olup, üst örtünün altında cepheyi boydan boya dolaşan bir çini kuşağı ve her musluğun üzerinde bir çini plaka uygulamasına yer verilmiştir.
Batı cephede, dördü giriş açıklığının güneyinde, üçü kuzeyinde olmak üzere yedi altlı üstlü pencere; güney cephede sekiz altlı üstlü pencere; doğu cephede girişin güneyinde dört, kuzeyinde iki olmak üzere toplam altı altlı üstlü pencere; kuzey cephede girişin iki yanında dörder adet altlı üstlü pencere açıklığı bulunmaktadır. Bunun yanında doğu ve batı giriş açıklıkları ile mihrabın üzerinde ikinci kat pencereleri hizasında dairevi pencereler bulunmaktadır. Alt kat ve üst kat pencereleri dikdörtgen formlu ve lentolu olarak yapılmıştır. Üst kat pencerelerine göre daha büyük ebatlı olarak yapılmış olan alt kat pencerelerinin üzerinde sivri sağır kemerlere yer verilmiştir. Alt ve üst kat pencerelerinin tamamı yarma-geçme ve lokmalı birleşme tekniklerinde yapılmış metal pencere şebekelerine sahiptir63. Dairevi pencerelerde şebeke yoktur. Mermer malzemeden yapılmış olan lentoların bir kısmı aşağıda ayrıntılı olarak değinileceği gibi devşirme malzemelerden elde edilmiştir.
Yangının Konya ahalisine verdiği zararın büyüklüğü göz önüne alınarak, yangına daha dayanaklı olması için yeni inşa edilen yapı, bütünüyle kesme taş malzeme ile yapılmıştır. Ancak ikinci kat pencerelerinin altına denk gelen alanda üç sıra tuğla hatıl tüm cepheleri dolaşmaktadır. Bunun yanında tuğla malzeme pencere lentolarının üzerinde yer alan sağır kemerlerin içini doldurmak için de kullanılmıştır. Yapının güneydoğu ve güneybatı köşelerinde tuğla hatılların altında sağır kemerlerin hemen üzerinde metalden yapılmış kuşaklarla beden duvarları desteklenmiştir (8. Foto). İç cephede ve üst örtüde ise ahşap malzeme tercih edilmiştir. Bağdadî olarak yapılan kubbeler içten sıvanmış, dıştan ise kurşun kaplı kırma çatı ile örtülmüştür. Başta lentolarda olmak üzere cephelerin farklı yerlerinde ve son cemaat yerinde çeşitli ebatlarda devşirme malzeme kullanılmıştır:
Batı cepheden başlayarak; güneyden ikinci pencerenin lentosunun yanında bitkisel bordüre sahip bir devşirme parça kullanılmıştır (9. Foto). Daha önce belirtildiği üzere batı giriş açıklığını sınırlandıran kartuşun üst kısmında da korint başlıklara yer verilmiştir.
Güney cephede; doğudan üçüncü pencerede söve olarak devşirme mermer malzeme kullanılırken (10. Foto), doğudaki ilk pencerede, ortasında kabartma bir çiçek motifinin yer aldığı devşirme malzeme lento olarak kullanılmıştır (11. Foto).
Doğu cephede, güneyden ikinci üst kat penceresinin lentosunda oldukça yıpranmış ve sadece örgü motifinin seçilebildiği devşirme taş malzeme görülebilmektedir (12. Foto). Güneyden ikinci pencerenin altında günümüz zemin kotunda geometrik bir çerçeveye sahip taş malzeme yer almaktadır (13. Foto). Üçüncü pencerenin sövesinde ise oyma tekniğinde çiçek motifi işlenmiş devşirme malzeme dikkat çekmektedir (14. Foto). Doğu giriş kapısı ile minare arasında kalan pencerenin lentosunda baklava dilimli kartuşlar içerisinde çiçek motiflerinin bulunduğu devşirme kullanılırken (15. Foto), son cemaat yerini oluşturan kemerin üzengi seviyesinde de devşirme bir malzeme bulunmaktadır.
Doğu cephede ilgi çeken iki önemli devşirme malzemeden birisi bir güneş saati ya da istiridye kabuğu izlenimi uyandıran bir parça ile haç motifinin işlendiği bir başka devşirme malzemedir (16. Foto). Haç motifinin yer aldığı taş yarım olarak kullanılmıştır. Günümüzde üst örtüden gelen suların tahliye edilmesi için yapılmış olan saçaktan zemine uzanan yağmur borusunun arkasında kaldığı için tam olarak izlenemeyen kompozisyonda, ortada bir haç ve kenarlarda dairevi panolar içinde daha küçük haç motifleri yer almaktadır (17. Foto).
Daha önce ifade edildiği gibi yapının inşasında Konya Kalesinden getirilen taşlarının kullanıldığı bilinmektedir64. Özellikle 18 ve 19. yüzyılda şehre gelen yabancı seyyahlar, kalenin beden duvarlarında pek çok antik malzemenin bulunduğunu kaydetmektedirler65 . Buna göre yapıda özellikle lento ve söve olarak kullanılan Antik ve Bizans dönemine ait olabilecek parçaların da kaleden getirilmiş olma ihtimali bulunmaktadır. Bunun yanında bu parçalarının Konya içerisinde ya da yakın çevresinde zaman içerisinde harap olmuş Bizans yapılarına ait olabilecekleri de göz ardı edilmemelidir.
8 basamaklı merdivenle çıkılan son cemaat yeri, 10 adet mermer sütunla dokuz bölüme ayrılmış olup sütunlar sivri kemerlerle birbirine bağlanmıştır (18. Foto). Ortada yer alan giriş bölümünün ve yanlarda kalan ve girişe göre 1.05 m. yüksekliğe sahip yan mekânların üzeri iki ayrı bölüm halinde düz tavanla örtülmüştür. Bu tavanlar, harimde olduğu gibi kalemisi olarak yapılmış bitkisel kompozisyonlarla bezenmiştir.
Son cemaat yeri oldukça yüksek olarak tasarlandığı için, ikişer devşirme mermer sütunun üst üste konulması suretiyle gerekli yüksekliğe ulaşılması sağlanmıştır. Kuzeydoğu köşede yer alan sütunun kaidesinde oldukça büyük boyutlu korint başlık ters çevrilerek kullanılmıştır (19. Foto). Kuzeybatı köşede ise Bizans dönemine ait düğümlü bir sütuna yer verilmiştir (20. Foto)66. Bu sütunun hemen hemen aynısı Konya Alâeddin Camiinin ilk olarak yapılan doğu bölümünde, ortadaki bölüme yakın olan bölgede karşımıza çıkmaktadır. Alâeddin Camiinde biri, mihrap duvarının kuzeyindeki ikinci sırada; dördü üçüncü sırada olmak üzere toplam beş adet düğümlü sütun kullanılmıştır67. Ancak iki yapıda kullanılan sütunlar arasında bazı farklar bulunmaktadır. Öncelikle Alâeddin Camiindeki sütunların hepsi birbirinin aynı olup, hepsi tam boy olarak kullanılmışlardır. Kapı Cami’nde kullanılan düğümlü sütun ise tam boy olmayıp, sütunun düğümden yukarısı kesilmiş ve üzerine başka bir sütun oturtulmuştur. Büyük olasılıkla sütun daha önceden kırılmış ve devşirilirken kırık kısım düzeltilmiş ve üstüne yerleştirilen sütuna altlık olarak kullanılmıştır. Aynı zamanda Kapı Cami’nde kullanılan sütunun yivleri diğerlerine göre daha derin olarak yapılmıştır68.
Caminin kuzey girişi oldukça sade olarak tasarlanmış olup, basık kemerli giriş açıklığını da kapsayan dikdörtgen formlu bir alan hafifçe içeri çekilmiş ve böylece girişin vurgulanması sağlanmıştır. Doğu ve batıdaki girişlere göre daha büyük olarak yapılmış olan kuzey giriş kapısının üzerinde yarım daire biçimli mermer kitabe yer almaktadır (21. Foto). Üzerinde “Maşallah” ve çevresinde Ashab-ı Keyfin isimlerinin69 yazılı olduğu ikili kartuşlar halinde üç satırlık Şair Zehri’ye70 ait manzume Talik hatla yazılmış olup, metni şöyledir:
Rızâya minnet-i tecdîd mücrâ kasd edüp Mevlâ
Kazâ-i nâr ile kılmış idi bu ma ‘bedi imhâ
Mesâ‘î-i cemîl cümle ile bed olup işte
Bi-lutf-i hazret-i Allah hitâm oldu behişt âsâ
Tavâf edüp sürûşân söyledi târîhini Zehrâ71
Sipâs u hamd-ı hâdî et salât eyleyüp îfâ
Hurrire el-Hasan el-Fahrî 1285.
B-Harim
Birbirine ve duvarlara basık kemerlerle bağlanan 16 ahşap direğin taşıdığı üst örtü sistemine sahip harim, yaklaşık olarak kare bir alanı kaplamaktadır (22. Foto). Ahşap direkler ile beden duvarları arasında kalan alanlarda düz tavan, sütunların arasında kalan alanlarda ise kubbelere yer verilerek farklı bir üst örtü uygulamasına gidilmiştir72. Bağdadi kubbelerden ortadaki, diğerlerine göre daha büyük ve daha düzgün olarak yapılırken özellikle köşelerde yer alan kubbeler tam dairevi olarak değil oval olarak yapılmışlardır. Kubbe eteklerinde kalemisi ile yapılmış bitkisel karakterli motifler tüm kubbe eteğini dolaşmakta ve kubbeye doğru yükselmektedir. Kubbelerin merkezinde ise yine bitkisel karakterli olan bezemeler yer almakta ve bu göbekler, salbek ve tığlarla kubbe eteğine doğru uzanmaktadır. Kubbeye geçiş elemanlarında panolar içerisinde “Allah ve Muhammed” lafızları, “Cıhar Yar-i Güzin”in ve “Aşere-i Mübeşşere”nin adları Celi Sülüs hatla yazılmıştır. Ortada yer alan ve diğerlerine göre hem daha büyük hem de şekil olarak daha düzgün olan kubbenin, kubbe eteğinde “Esma-ül Hüsna”dan oluşan bir yazı kuşağı dolanmaktadır (23. Foto). İçten düz tavan-bağdadi kubbe birleşiminden oluşan ve tam bir bütünlük göstermeyen üst örtü, dıştan kurşun kaplı kırma çatı ile sonlandırılarak mekânın bütüncül bir görsel anlatıma kavuşması sağlanmıştır.
Dıştan dikdörtgen formlu olan pencereler, içten basık kemer şeklinde yapılmış ve içten dışa daralacak şekilde tasarlanmışlardır. Büyük boyutlu alt ve üst kat pencereleri sayesinde oldukça aydınlık olan harim mahfil katı nedeniyle kısmen de olsa loş bir görünüme bürünmektedir.
Yapının sade taş mihrabı73 1998 yılında yapılan restorasyonda yenilenerek yerine bugünkü 3.59 x 5.55 m. ölçülerindeki çini mihrap yapılmıştır. Güney duvarında iki pencere arasındaki çini mihrap, beden duvarından hafifçe öne taşırılmış dikdörtgen bir çerçeveyle sınırlandırılmıştır (24. Foto). Dikdörtgen çerçevenin üzerinde ortada daha geniş yanlarda daha dar beş dilimli bir taç yer almaktadır. Lacivert renkli zemine sahip taç bölümünde beyaz, kırmızı ve açık mavi renklerde palmet ve kıvrık dallardan oluşan bitkisel karakterli bir bezeme uygulaması gerçekleştirilmiştir. Sivri kemerli mihrap nişi çokgen formludur. Köşelerde sütuncelerle sınırlandırılan niş 1.23 m. genişliğinde ve 0.66 m. derinliğindedir. 3.47 m. yüksekliğindeki kavsara ve mihrap nişi bitkisel bir bordürle kuşatılmış, bu bordür Ayet-el Kürsi’nin yazılı olduğu bir yazı kuşağı ile ve yazı kuşağı da tekrar bir bitkisel bordürle nihayetlendirilmiştir. Kavsara köşeliklerinde simetrik olarak düzenlenmiş iri bitkisel motifler kullanılmıştır. Yazı kuşağında zemin lacivert renk, yazı kompozisyonları ise beyaz renkte uygulanırken; bitkisel bordürlerde zemin beyaz renkte, motifler açık mavi, yeşil ve kırmızı renktedir. Mihrabın kaide kısmında vazodan çıkan çiçeklerden oluşan kompozisyonlar yer almaktadır. Bu kompozisyonlar her iki tarafta ikişer adet uygulanmış ve aralarında sütuncelere yer verilmiştir.
Yüksekliği 7.65 m., uzunluğu 4.22 m. olan amber ağacından yapılmış minber, koyu kahverengi boya ile kötü bir şekilde boyanmıştır (25. Foto). Altı dilimli kemer gözünden oluşan aynalıkaltı bölümü, kapı yönünde altıgen biçiminde bir tasarımla, taht yönünde ise kemer açıklığıyla son bulmaktadır. Bu kısmın üzerinde dik açılı üçgen şeklinde yan aynalıklar yerleştirilmiştir. Aynalıkların kenarlarında stilize edilmiş bitki motiflerinden oluşan bir kenarlık ve üst bölümde kıvrık dal, yaprak ve kufi yazıdan oluşan bordürler yer almaktadır. Bordürlerin içinde kalan üçgen şeklindeki alan, kündekari tekniği ile yapılmış kareler içine geçirilmiş üçgen ve beşgenlerden oluşan oluklu çıtalı bir şebekeye sahiptir. Geometrik formların içi kıvrık dal, rumi ve palmetlerle doldurulmuştur. Aynalığın üzerinde kafes işi tekniğinde yapılmış olan geometrik birimlerden oluşan korkuluk yer almaktadır. Baklavalarla dört kollu yıldızların kesişmesi ile oluşturulan korkulukta baklavalar sekiz kollu yıldızlarla dolgulanmıştır. Minber kapısının yan kenarları kündekari teknikte, içi kıvrık dal, rumi ve palmetlerden oluşan beşgenlerle bezenmiştir. Köşeleri rumi ve kıvrık dallarla bezenmiş minber giriş açıklığının yarım daire kemeri içine minber kapısı oturtulmuştur. Kapı kanatları çevresi kıvrık dal ve rumi kenarlık ile çevrelenmiş altıgen, üçgen gibi geometrik birimlerden oluşan bir kompozisyona sahiptir. Geometrik birimlerin içi, yan aynalıklarda olduğu gibi, kıvrık dal, rumi ve palmetlerle bezenmiştir. Yuvarlak kemerin üstünde zemini bitkisel bezemelerle dolgulu kufi yazılı bir pano bulunmaktadır74.
1.14×1.14 metrelik kare bir tabana oturan minberle aynı malzemeden yapılmış olan kürsünün korkuluk dâhil yüksekliği 1.99 m.dir (26. Foto). Köşelere oturtulan dört babanın yüksekliği 0.26 m.dir. Oyma ve ajur tekniği ile yapılmış olan kürsü, minber gibi koyu kahverengi renkte boyanmıştır. Dört köşesinde üstü balık pulu motifleri ile bezenmiş sütun başlığı ile sonlandırılmış birer sütunce bulunan parçanın gövdesi stilize edilmiş çiçek motifleri oyularak bezenmiştir. Her cepheye 13 çiçek motifi yerleştirilmiştir. Kürsü kaidesinin üstüne 0.36 m.lik bir korkuluk yerleştirilmiştir75 .
H. Örcün Barışta tarafından stil kritiği ve analoji yöntemlerine dayanılarak yapılan çalışmada Osmanlı İmparatorluk Dönemi öncesine tarihlenen minber ve kürsünün yapım tarihi hakkında kesin bir bilgi bulunmamaktadır. Ancak 1867 yılında caminin tamamıyla yandığı göz önünde bulundurulursa minber ve kürsünün Kapı Cami’nin önceki inşası ile ilgili olamayacağı düşünülmelidir. Bunun yanında yapının keşif defterlerinde mihrap, minber, kürsü ve mahfil yapımı için ayrılmış bir ödenek de bulunmaktadır76. Buna göre minber ve kürsünün, yapının yeni inşa sürecinde gerçekleştiğini düşünmek yanlış olmasa gerekir. Ancak gözden kaçırılmaması gereken bir başka husus da daha önce ifade edildiği gibi yapı maliyetini düşürme çabasıdır.
Harimin üzerinde ikinci bir kat görünümünde “U” planlı bir mahfil yer almaktadır (27. Foto). Doğu, batı ve kuzey beden duvarlarının bitişiğindeki düz tavanla örtülü alanların altında yer alan ahşap mahfile kuzeydoğu ve kuzeybatı köşelerde yer alan iki adet merdivenle ulaşılmaktadır. Kemer üzengi seviyesinin hemen altından başladığı için oldukça yüksek bir konumda yer alan mahfil, üst örtüye yakınlığından ve üzerinin düz tavanla örtülü olmasından dolayı basık bir görünümdedir. Ancak caminin tamamında olduğu gibi mahfil katı da, büyük boyutlu pencereler sayesinde yeterli ışığı alabilmektedir. Mahfilin mihrabın karşısına gelen bölümünde, 4.73 m. genişliğinde ve mihrap yönünde 1.63 m. taşıntı yapan elips biçimli bir çıkması bulunmaktadır (28. Foto). Çıkmanın kırmızı renkli alt zemini ahşap çıtalarla merkezden yayılan ışınlar şeklinde oluşturulmuş bir kompozisyonla bezenmiştir77.
Caminin, beden duvarları pencere hizasına kadar çini kaplıdır. Çini plakaların üst kısmı ise sıvalıdır. Pencere açıklıklarının çevreleri ve kubbeye geçiş elamanları ile kubbelerde yoğun bir kalemisi süsleme göze çarpmaktadır78. 1998 yılında gerçekleştirilen restorasyonda büyük oranda yenilenmiş olan kalemisleri, beyaz sıva üzerine açık mavi ve lacivert renk olarak uygulanmıştır. Bitkisel karakterli palmet, rumi ve kıvrık dallardan oluşan kuşaklar geniş bir uygulama alanı bulmuştur.
Duvarda kaplama olarak kullanılan çiniler, mihrap nişinde yer alan çinilerle aynı motif ve kompozisyon özelliklerine sahiptir. Kütahya’da imal edilen bu çinilerde79 elips formlu bir göbeğin alt ve üstünde yer alan hatayiler ve bunların çevresinde bitkisel karakterli motifler beyaz zemin üzerine işlenmiştir.
Genel hatları itibariyle iyi durumda olan Kapı Camii, son yıllarda birçok restorasyon geçirmiştir80. Bu onarımlar büyük oranda yapının süsleme programının iyileştirmesine yönelik olarak gerçekleştirilmiştir. Ahşap direklerin lambri ile kaplanması, çini ve kalemisi bezemelerin yenilenmesi son 15 yılda yapılmıştır. 1992 yılında caminin yazı ve kalemislerinin yenilenmesi konusunda karar alınmış ve bu çalışma birkaç yıl sürmüştür. Ancak yapıdaki en büyük onarım çalışması 1997-98 yıllarında Vakıflar Genel Müdürlüğü uzmanlarının denetiminde gerçekleştirilmiştir. 1997 yılında giriş kapılarının kündekari tekniğinde yıldız geçmeli olarak yenilenmesi; mihrap, duvar ve pencere kenarlarının çini kaplanması kararlaştırılmıştır. Ancak uygulama aşamasında mihrap ve duvarlar çini kaplanırken, pencere kenarları kalemisi olarak bezenmiştir.
Konya’daki geç dönem Osmanlı mimarisinin kendine özgü bir uygulaması olan Kapı Camii, çarşı-dükkân dokusunun merkezinde, ticarî faaliyetin en yoğun olduğu bir alanda altındaki dükkânlarla hem ticarî faaliyete katkı sağlamakta, hem de çarşı esnafının ibadetgâhı olarak büyük bir önem taşımaktadır.
III. DEĞERLENDİRME:
Bugüne kadar Konya ve Konya’daki tarihi eserlerin tanıtıldığı pek çok yayında ele alınan Kapı Camii, bu yayınlarda genel olarak tanıtılmış; ancak yapının bütünü ile ilgili ayrıntılı bir çalışma gerçekleştirilmemiştir. İlk inşasından günümüze ulaşan yapıya kadar geçen süre içerisinde çeşitli nedenlerle üç kez harap olup, yeniden yapılan ve pek çok onarımlar geçiren cami, gerek konumu ve gerekse inşa süreci açısından oldukça dikkat çekici bir eserdir.
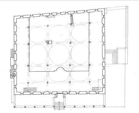
Çalışmamızın birinci bölümünde 1867 yangını sonrasında caminin yapılış süreci bir kesit halinde incelenmiştir. Caminin inşa sürecinin ele alınmasında Başbakanlık Osmanlı Arşivi’nde muhafaza edilen ve adı geçen döneme ait arşiv belgeleri kullanılmıştır. Bu arşiv belgelerinden en önemlisi yangının hemen sonrasında vilayet mühendisleri tarafından düzenlenmiş olan keşif defteridir. Söz konusu defterde caminin inşası için gerekli olan malzemelerin miktarları ile fiyatlarının dökümü yapılmış ve camiye ait bir inşa planına da yer verilmiştir (1. Şekil). Diğer taraftan cami ile ilgili bu belgelerin dışında, inşa faaliyetlerinin yürütülmesi amacıyla Konya Vilayeti ile devlet merkezi arasında yapılan yazışmalar da önemli bilgiler vermektedir. Bu nedenle birinci bölümün oluşturulmasında adı geçen arşiv malzemelerinden de yararlanılmıştır.
Çalışmanın ikinci bölümünde yapının mevcut hali, sanat tarihi ölçütlerine göre incelenmiş ve caminin ayrıntılı bir tanımı yapılmaya çalışılmıştır. Çalışmamızın değerlendirme bölümünde ise birinci ve ikinci bölümde ayrıntılarıyla ele alınan Kapı Cami’nin inşa süreci ve günümüzdeki durumu hakkında genel bir değerlendirme yapılacaktır. Böylece her iki bölümde caminin inşası ve günümüzdeki durumu hakkında öne çıkan ve dikkat çeken hususlar hakkında da bazı yorumlar getirilebilir.
Daha önce ifade edildiği gibi ilk defa 1658 yılında yapılan81 ve 1811 de yenilenen cami, 1867 yılında Konya Çarşısı yangınında tamamen yanmış ve kullanılamaz hale gelmiştir. Neticede 1867-1869 yılları arasında halkın yardımı ile taş malzemeden yeniden inşa edilmiştir82.
Cami hakkındaki arşiv vesikalarında, yapının mimar ve ustaları hakkında herhangi bir bilgi bulunmamaktadır. Ancak vilayet mühendisi Hadi Efendi ve onun emrinde çalışan mimar kalfaları ile cami vakıf heyetinin, 28 Eylül 1867 tarihinde yangın mahallinde inceleme yaparak bir keşif defteri hazırladığı bilinmektedir83. Vilayet mühendisi Yüzbaşı Ahmet Hadi Efendi, aynı zamanda vilayet bünyesinde yolların tesviyesi maksadıyla teşekkül ettirilmiş olan komisyonun da üyesidir. Ayrıntılı keşif defterleri ve çizimler hazırlayabilen mühendis ve kalfalardan oluşan bir birimin, 1867-1869 yıllarında Kapı Cami’nin inşasında mimar veya usta olarak görev aldıkları düşünülebilir. Ancak bu çıkarımı kesin olarak doğrulayacak bir bilgiye şimdilik ulaşılamamıştır.
Caminin inşa tarihini veren ve giriş açıklıklarının kemerleri üzerinde yer alan üç adet kitabe bulunmaktadır. Daha önce ifade edildiği gibi yangın 28 Eylül 1867 tarihinde olmuş, yaklaşık iki yıl süren bir çalışma neticesinde yapı tamamlanarak 1869 yılı sonlarında hizmete açılmıştır. Doğu ve kuzey giriş açıklıklarının üzerinde yer alan kitabelerde geçen 1285 H/1869 M tarihi yapının ibadete açıldığı tarihtir.
Kapı Camii hakkında bilgi veren yayınlarda cami kitabelerinden kuzeydekine yer verilirken diğer ikisi genellikle göz ardı edilmiştir. Kuzey taç kapıda yer alan kitabenin son satırında geçen “Zehri” ismi bu kitabenin onun tarafından manzum olarak kaleme alındığını göstermesi yönünden önemlidir. Bunun yanında kitabenin sonunda kitabeyi taşa işleyen usta olarak “el-Hasan el-Fahrî” ismi geçmektedir. Aynı şekilde batı taç kapıda yer alan kitabenin de “Şevki” tarafından kaleme alındığı belirtilmektedir. Ancak doğu taç kapıda yer alan kitabenin kimin tarafından kaleme alındığı ve taşa işlendiği konusunda bilgi bulunmamaktadır.
Kuzey ve doğu cephelerde yer alan kitabeler yapının inşa edildiği yıllarda yaygın olarak kullanılan Ta’lik hatla taşa işlenirken, batı cephede yer alan kitabe ise Sülüs hatla işlenmiştir. Kuzey ve doğu cephelerde yer alan kitabelerin, talik hatla yazılarak, inşa tarihinin rakamla belirtilmesi bu kitabelerin aynı şahısların elinden çıktığı düşüncesini akla getirmektedir. Bunun yanında Şevki tarafından manzum olarak kaleme alınıp, sülüs hatla taşa işlenen ve ebced hesabı ile H. 1300 tarihini veren batı cephedeki kitabenin sonradan yerleştirilmiş olma olasılığı öne çıkmaktadır. Diğer taraftan kuzey cephede yer alan kitabenin çevresinde Ashab-ı Keyfin isimlerinin verilmesi de dikkat çekici bir uygulamadır. Bu isimlerin kitabenin çevresine niçin yazıldıkları konusunda bir bilgi bulunmamaktadır. Ancak yapının inşasına öncülük eden kişiler ya da kitabeyi kaleme alan-taşa aktaran ustalar Ashab-ı Keyfin isimlerini kitabeye işlemek suretiyle, daha önce kül olmuş bir binanın bu şekilde bazı musibetlerden korunacağını düşünmüş olmaları mümkün görünmektedir.
Camide kullanılan malzemeler ile bunların miktarları hakkında birinci bölümde ayrıntılı değerlendirmeler yapılmıştır. Ancak burada camide kullanılan taş malzemelerin Konya Kalesi ve çevresindeki harap haldeki yapılardan devşirildiği özellikle vurgulanmalıdır84.
Yapıya ait keşif defterinde caminin bir planına da yer verilmektedir. Ancak yapının ilk keşfi neticesinde belirlenmiş planı ile inşa edilen caminin planı ve boyutları birbirinden farklılık göstermektedir (2. Şekil). Bu farklılığın nedeni tam olarak tespit edilememiştir. Fakat bu konuda bazı tahminler yürütmek mümkündür. Öyle ki ilk keşif planı çeşitli sebeplerden uygulanamamış ya da uygulanmamıştır. Bu noktada caminin bir an evvel bitirilme zorunluluğu, hem plan ve süsleme hem de malzeme kullanımını ve işçilik kalitesini belirleyen en büyük etken olmuştur. Ayrıca bu konuda yangından hemen sonra yapılan keşif ve maliyet hesabının merkez tarafından karşılanmasının uygun görülmemesi de hayli etkilidir. Bu durumda cami masraflarının ahalinin toplayacağı yardımlardan karşılanması gereği ortaya çıkınca, caminin ilk planı uygulanamamış ve camide yapılan düzenlemeler ancak yardımlar nispetinde gerçekleşmiş olmalıdır.
Keşif defterlerinde yer alan ilk plan85 , tam kare planlı bir harim ve kuzeyde yer alan yedi bölümlü son cemaat yeri ile kuzeydoğu köşede yer alan bir minareden oluşmaktaydı. Merdivenli üç giriş açıklığı ile ulaşılan harim, çok destekli taşıyıcılara sahip olup, orta bölümde geniş bir kubbeye yer verilmiştir. Çok sayıda pencereye yer verilen beden duvarları, payandalarla desteklenmiştir.
Günümüzdeki mevcut yapıya baktığımızda ilk planın büyük oranda uygulandığı ancak detaylarda ve kısmen de planlamada çeşitli değişikliklere gidildiği görülmektedir. Mevcut harim tam kare planlı olarak yapılmamış, bunun yerine arazinin mevcut durumunun getirdiği sebeplerden, batı duvarın doğu duvardan daha uzun olarak tasarlanması zorunluluğu doğmuştur86. İlk planda yedi bölümlü olarak tasarlanan son cemaat yeri dokuz bölümlü olarak uygulanmış, minarenin konumu ve giriş açıklığı sayısı değişmezken, pencere sayısı azalmış ve payandalar da ortadan kalkmıştır. İki plan arasındaki en önemli fark harim içerisinde yer alan taşıyıcılar ile üst örtüde görülmektedir. İlk planda otuz iki adet taşıyıcı ayak-sütun olduğu anlaşılırken, günümüzde on altı adet ahşap sütunla üst örtünün taşınması sağlanmıştır. İlk planda ortada büyük bir kubbe görülmekte olup, yanlardaki birimler hakkında kesin bir sonuca varacak yeterli delil bulunmamaktadır. Mevcut yapıda ise duvar kenarlarında düz tavan, ortada kalan alanda ise dokuz adet kubbeye yer verilmiştir.
Cami maliyetinin düşürülmesi maksadıyla, sadece inşaatta kullanılacak malzemelerin yakın çevreden temin edilmesine gidilmemiş, aynı zamanda caminin muhtemel planı ve üst örtüsünde de değişiklikler yapılmıştır. Bilindiği gibi Kapı Camii, Anadolu’da Selçuklu döneminden itibaren yaygın bir şekilde uygulanan ahşap direkli “Ulu Camii” geleneğinin ileri bir aşaması olan ve Osmanlı döneminde Bursa ve Edirne gibi merkezlerde gördüğümüz “eşdeğerde çok üniteli cami” tipinin Konya’daki farklı bir uygulamasıdır. 1399 tarihli Bursa Ulu Camii ve 1403-1411 tarihli Edirne Eski Cami’nde kagir olarak uygulanan direk ve üst örtü sistemi, Kapı Cami’nde ahşap-bağdadi olarak uygulanmıştır. Bursa Ulu Camiinde yirmi, Edirne Eski Camiinde dokuz kubbeye yer verilirken; Kapı Cami’nde merkezde dokuz kubbeye yer verilmiş, diğer örneklerden farklı olarak duvar kenarlarına denk gelen alanlar ise düz tavanla örtülmüştür. Bu farklı üst örtü şeması, kubbeli yapıya verilen önem neticesinde ortaya çıkmıştır87. Kagir kubbe yapımının, inşa maliyetini büyük oranda arttırması88 nedeniyle böyle bir uygulamaya gidilmiş, bağdadi kubbeler yapılarak, hem maliyet düşürülmüş hem de ahalinin çok istediği kubbeli bir cami inşa edilmesi imkânına kavuşulmuştur. Böylece üst örtünün kırma çatı olması zorunluluğu nedeniyle de beden duvarlarının yanında kalan alanlar düz tavan olarak bırakılmış ve çatının eğimi sağlanmıştır. Ortada yer alan kubbenin diğerlerine göre daha düzgün ve büyük yapılmasının sebebi de kırma çatının özelliğinden kaynaklanmaktadır. Bunun yanında yanlarda yer alan kubbelerin hafif oval olarak yapılması mimari bir hata sonucu değil, bir zorunluluk neticesinde olmuştur. Yapının tam kare olmayan planının getirdiği şekil bozukluğu üst örtüde kubbelerin boyut ve şekil özellikleri ile oynanarak çözülmüştür.
Yapının kalemisi bezemeleri, restorasyonlarda yenilenmiş olduğundan özgün renk ve kompozisyonları hakkında kesin bilgilere sahip bulunmamaktayız. Ayrıca duvarlarda kullanılan çiniler son dönemde Kütahya’da imal edilmiş olup, bitkisel karakterde motiflerin hâkim olduğu mavi, kırmızı ve beyaz renklere sahiptirler.
Kapı Camii bulunduğu merkezî konum itibariyle esnaflar açısından çok önemli bir noktada yer almaktadır. 1867 yılında yaklaşık 1320 dükkânın faaliyette olduğu Konya çarşısının ortasında ve yakınında yer alan Yüksek Cami (Aziziye) ile beraber önemli bir nüfusa hizmet vermektedir. Çarşının hemen ortasında esnaf dükkânlarıyla iç içe bulunan camiler, vakit ve özellikle Cuma namazlarında esnafın vakit kaybetmeden ve yürütmekte oldukları işlerine çok fazla ara vermeden ibadetlerini yerine getirmelerine imkân tanımaktadır. Ancak 1867 yangını ile her iki caminin de kullanılamaz hale gelmesi, esnafın dükkânlarından Kapı ve Aziziye Camilerine oranla daha uzak olan diğer camilere yönelmelerine neden olmuş ve bu camilerin kapasiteleri de yeterli gelmemiştir. Bu durum çarşı esnafının bir an önce camilerin inşa edilmesi ve inşa edilen yapıların da çarşı cemaatinin ihtiyacını giderecek nitelikte olması gibi bazı talepleri doğurmuştur. Ancak gerek devletin içinde bulunduğu durum nedeniyle cami masraflarını karşılayamaması ve gerekse cami inşaatına katkı sağlayacak çarşı esnafının yangın neticesinde dükkânlarını ve malzemelerini kaybetmeleri nedeniyle perişan durumda bulunmaları inşa sürecinin sancılı geçmesine neden olmuştur. Fakat yine de hem dükkânların bir an önce yeniden yapılması hem de camilerin yeniden inşa edilmesi gereği Konya ileri gelenleri arasında önemli bir yardımlaşma ve işbirliğine neden olmuş, neticede Konya bu kısa süreçte (1867-1869) büyük bir imar ve inşa çalışmasına sahne olmuştur.
1867-1869 yılları arasında, yangında zarar gören Konya çarşısı ve çevresindeki yapılar yoğun bir imar çalışması ile yeniden inşa edilmiş olmakla birlikte, çarşı esnafı ve Konya halkı yangının tesirlerinden uzun süre kurtulamamıştır. 19. yüzyılın sonlarında şehre gelen seyyahlar ağız birliği etmişçesine, Konya çarşısının düzenini ve yeni halini tasvir ettikten sonra Konya’nın harap halinden dem vurmaktadır. Bu harap görünümün ardında pek çok sebep bulunmakla birlikte bu yangının da etkisini unutmamak gerekir. Üstelik Kapı ve Aziziye camileri ile yanan dükkânların yerine yenilerinin yapılması için harcanan kaynaklar ticarî gücün sekteye uğramasına da neden olmuş olmalıdır.
İlk yapıldığı XVII. yüzyılın ortalarından itibaren Konya çarşısının merkezinde önemli bir ibadethane olan Kapı Camii, günümüzde de aynı misyonunu korumakta ve başta çarşı esnafı olmak üzere çevredeki ahaliye hizmet vermeyi sürdürmektedir. Son olarak, geç dönem Osmanlı mimarisinin Konya’daki birkaç dinî mimarî eserinden birisi olan Kapı Cami’nin tanıtılmasını amaçlayan bu çalışmanın bundan sonra yapılacak olan daha ayrıntılı çalışmalara bir vesile olmasını ümit ederiz.
KAYNAKÇA
I-Arşiv Kaynakları
BOA, Sadaret Mektubî Kalemi Mühimme Odası Belgeleri (A.MKT. MHM): Nr. 406/10, Lef 1, 2, 3, 4, 5. (1867 Konya Çarşısı Yangında Zarar Gören Kapı Cami’nin Yeniden İnşası İçin Yapılan Keşif Defteri)
BOA, A. MKT. MHM, Nr. 391/66.
BOA, Hatt-ı Hümayûn Tasnifi (HH): Nr. 10649, HH. Nr. 36091 K; Nr. 27849.
BOA, Cevdet Darphane (C.DP), Nr. 2423.
BOA, İrade Şura-yı Devlet, (İ.ŞD) Nr. 3/130; lef 1, 2, 3, 4.
BOA, İ. ŞD, Nr. 19/788.
BOA, Şura-yı Devlet, (ŞD), Nr. 1701/56.
BOA, ŞD 1702/5.
II-Süreli Yayınlar
H.1285 (1868) Konya Vilâyeti Sâlnâmesi, Defa 1, Konya Vilâyet Matbaası, 1285/18691. H.1286 (1869) Konya Vilâyeti Sâlnâmesi, Defa 2, Konya Vilâyet Matbaası, 1286/1869.
III-Yayımlanmış Eserler
Abacı, Nurcan, “Sultan IV. Mehmed’in Musâhibi Mustafa Paşa’nın Konya’daki Vakıf Eserleri”, Uludağ Üniversitesi Fen-Edebiyat Fakültesi Sosyal Bilimler Dergisi, Sayı:6, Bursa 2004, s. 197-219.
Ayva, Aziz, Konya Âşıklık Geleneği Ve Âşık Ataroğlu, Hayatı, Sanatı, Şiirleri, Şiirlerinin Tahlili, Selçuk Üniversitesi Sosyal Bilimler Enstitüsü, Yayınlanmamış Doktora Tezi, Konya 2005.
Bakırer, Ömür, Selçuklu Öncesi ve Selçuklu Mimarisinde Tuğla Kullanımı I, Ankara 1981.
Barışta, H. Örcün, “Selçuklu Ahşap İşçiliğinden Bazı Örnekler ve Tanınmamış Birkaç Parça Üzerine”, I-II. Milli Selçuklu Kültür ve Medeniyeti Semineri Bildirileri, Konya, 1993, s. 93-96.
Barkan, Ömer Lütfi, Süleymaniye Cami ve İmareti İnşaatı (1550-1557), C-I, Ankara 1972
Baş, Ali, “Konya’daki Osmanlı Camileri”, Osmanlı Döneminde Konya, Konya, 2003, s. 251-276.
Baykara, Tuncer, Türkiye Selçukluları Devrinde Konya, Konya 1998.
Çetinaslan, Mustafa, Konya Camilerinde Mahfiller, (S.Ü. Sosyal Bilimler Enstitüsü Yayınlanmamış Yüksek Lisans Tezi), Konya 2005.
Duran, Remzi vd., “Konya’daki Geç Dönem Yapıları”, Konya Kitabı IX, Konya, 2006, 235-264.
Duran, Remzi, “Osmanlı Dönemi Konya Yapılarında Madeni Pencere Şebekeleri”, Konya Kitabı X (Rüçhan Arık-M. Oluş Arık’a Armağan), Konya, 2007, s. 291-312.
Ergun, Sadettin Nüzhet – Uğur, Mehmet Ferit, Konya Vilayeti Halkiyat ve Harsiyatı, (Sadeleştiren Prof. Dr. Hüseyin Ayan), Konya, 2002.
Es, Selçuk, “1284 Konya Çarşısı Yangını”, Şehir Postası, S. 185-193, 17-25 Eylül 1962. (Dizi Yazı)
Hinz, Walter, “İslâm’da Ölçü Sistemleri” (Çev. Acar Sevim), Türklük Araştırmaları Dergisi, Sayı: 5, İstanbul 1990, s.1-82.
Huart, Clement, Mevleviler Beldesi Konya, (Çev. Nezih Uzel), İstanbul 1978.
İnalcık, Halil, “Osmanlı Metrolojisine Giriş” (Çev. Eşref Bengi Özbilen), Türk Dünyası Araştırmaları, 73, İstanbul 1991, s. 21-50.
Konyalı, İ. Hakkı, Abideleri ve Kitabeleri ile Konya Tarihi, Ankara, 1997.
Kut, Günay, “Bir Cönk Üzerine”, Yazmalar Arasında Eski Türk Edebiyatı Araştırmaları, 1, İstanbul 2005.
Küçükdağ, Yusuf, “Mevlâna Türbesi ve Çelebi Efendi Konağı Tamiri Defteri”, Konya Şehri’nin Fiziki ve Sosyo-Ekonomik Yapısı, Konya 2004.
Küçükdağ, Yusuf, Lâle Devri’nde Konya, (Selçuk Üniversitesi Sosyal Bilimler Enstitüsü Yayımlanmamış Doktora Tezi), Konya 1989.
Mercangöz, Zeynep, “Akhisar Ulu Camii İçindeki Düğümlü Bizans Sütunları”, Sanat Tarihi Dergisi VII, İzmir, 1994, s. 145-162.
Muşmal, Hüseyin, “1867 Konya Çarşısı Yangını ve Etkileri Üzerine Bir İnceleme Denemesi”,
Cumhuriyet Üniversitesi Sosyal Bilimler Dergisi, C. 32, No: 1, Sivas 2008, s.97-116.
Nüzhet, Sadettin – Mehmet Ferit, Konya Vilayeti Halkiyat ve Harsiyatı, (Sad. Prof. Dr. Hüseyin Ayan), Konya 2002
Odabaşı, Sefa, XX. Yüzyıl Başlarında Konya’nın Görünümü, Konya 1998.
Oğuzoğlu, Yusuf, “XVII. yüzyılda Konya Şehrindeki İdari ve Sosyal Yapılar”, Konya, (Der. Feyzi Halıcı), Ankara 1984, s. 97-109.
Önder, Mehmet, Mevlana Şehri Konya, Ankara, 1976.
Önder, Mehmet, “Kapı Camii”, Konya Dergisi, Konya, 1949, s. 131-132.
Özönder, Hasan, “Mevlana Türbesi Mescid ve Sema-hanesi’nin Son Nakkaş ve Hattatı Konyalı Mahbub Efendi”, S.Ü. Türkiyat Araştırmaları Dergisi, Sayı:1, Konya, 1994, s. 93-108.
Pamuk, Şevket, Süleyman Özmucur, “Osmanlı İmparatorluğu’nda ve Avrupa’da Ücretler”, Osmanlı Ekonomisi ve Kurumları, İstanbul 2007, s.155-180.
Şaşmaz, Musa, “İngiliz Konsolosu Stewart’ın Konya Vilayeti’ne Dair Genel Raporu”, Selçuk Üniversitesi Türkiyat Araştırmaları Dergisi, Sayı: 12, Konya 2002, s.57-97.
Texier, Charles, Küçük Asya -Coğrafyası, Tarihi ve Arkeolojisi, Cilt: 3, (Çev. Ali Suat), Ankara 2002.
Yörük, Doğan, “Osmanlı Devleti’nde Kütüphane Yaptırmanın Maliyeti: Konya Yusuf Ağa Kütüphanesi Örneği (1794-1796)”, Manas Üniversitesi Sosyal Bilimler Dergisi, Sayı: 19, Bişkek 2008.
ŞEKİLLER
1. Şekil: Ahmet Hadi Efendi tarafından hazırlanan ve keşif defterinde yer alan yapının ilk planı
2. Şekil: Kapı Camii planı (O. N. Dülgerler’den).
FOTOĞRAFLAR
1. Fotoğraf: Kapı Camii, batı cephesi genel görünüm.
2. Fotoğraf: Batı girişte yer alan Ebced hesabı ile 1300 tarihini veren kitabe.
3. Fotoğraf: Yapının kuzeybatı köşesindeki eklenti ve şadırvanın genel görünümü.
4. Fotoğraf: Kapı Camii, doğu girişi ve minare kaidesinin genel görünümü.
5. Fotoğraf: Doğu girişte yer alan kitabe.
6. Fotoğraf: Minare ve abdest musluklarının genel görünümü.
7. Fotoğraf: Abdest muslukları üzerinde yer alan inşa kitabesi.
8. Fotoğraf: Batı cephede tuğla kullanımı ve metal kuşaklar.
9. Fotoğraf: Batı cephede yer alan devşirme malzeme örneği.
10. Fotoğraf: Güney cephede devşirme malzeme kullanımı.
11. Fotoğraf: Güney cephede devşirme malzeme kullanımı.
12. Fotoğraf: Doğu cephede devşirme malzeme kullanımı.
13. Fotoğraf: Günümüz zemin kotunda yer alan devşirme malzeme.
14. Fotoğraf: Doğu cephede pencere lentosundaki devşirme malzeme.
15. Fotoğraf: Doğu cephede pencere lentosu olarak kullanılan devşirme parça.
16. Fotoğraf: Doğu cephede yer alan devşirme malzeme.
17. Fotoğraf: Doğu cephede yer alan haç motifinin işlendişi devşirme malzeme.
18. Fotoğraf: Kuzey giriş, genel görünümü.
19. Fotoğraf: Son cemaat yeri kuzeybatı köşede yer alan korint başlık.
20. Fotoğraf: Son cemaat yerinde yer alan Bizans Düğümlü sütunu.
21. Fotoğraf: Kuzey girişte yer alan kitabe.
22. Fotoğraf: Harimden görünüş
23. Fotoğraf: Kubbe kasnağında yer alan yazı kuşağı.

24. Fotoğraf: Caminin mihrabı.

25. Fotoğraf: Minber, genel görünüm.

26. Fotoğraf: Kürsü, genel görünüm.

27. Fotoğraf: Mahfilin görünüşü.

28. Fotoğraf: Mahfilin çıkması.
DİPNOTLAR
* Selçuk Üniversitesi Edebiyat Fakültesi Tarih Bölümü
** Selçuk Üniversitesi Edebiyat Fakültesi Sanat Tarihi Bölümü
1 Tuncer Baykara, Türkiye Selçukluları Devrinde Konya, Konya 1998, s. 141.
2 Yusuf Oğuzoğlu, “XVII. yüzyılda Konya Şehrindeki İdari ve Sosyal Yapılar”, Konya, (Der. Feyzi Halıcı), Ankara 1984, s. 97; Sefa Odabaşı, XX. Yüzyıl Başlarında Konya’nın Görünümü, Konya 1998, s. 88
3 Kapı Camii bugüne kadar pek çok çalışmaya konu olmuştur. Ancak bu çalışmalarda cami hakkında genel bilgiler verilmiş, inşa süreci ve günümüzdeki durumunu ayrıntılı olarak ele alınmamıştır. Kapı Camii hakkında bilgi veren çalışmalardan bazıları şunlardır: Mehmet Önder, “Kapı Camii”, Konya Dergisi, Konya 1949, s. 131-132; Mehmet Önder, Mevlana Şehri Konya, Ankara 1976, s. 245-247; H. Örcün Barışta, “Selçuklu Ahşap İşçiliğinden Bazı Örnekler ve Tanınmamış Birkaç Parça Üzerine”, I-II. Milli Selçuklu Kültür ve Medeniyeti Semineri Bildirileri, Konya, 1993, s. 93-96; İ. Hakkı Konyalı, Abideleri ve Kitabeleriyle Konya Tarihi, Ankara 1997, s. 426-431; Ali Baş, “Konya’daki Osmanlı Camileri”, Osmanlı Döneminde Konya, Konya 2003, s. 251-276.; Remzi Duran, vd., “Konya’daki Geç Dönem Yapıları”, Konya Kitabı IX, Konya, 2006, s. 238.
4 Yusuf Küçükdağ, Lâle Devri’nde Konya, (Selçuk Üniversitesi Sosyal Bilimler Enstitüsü Yayımlanmamış Doktora Tezi), Konya 1989, s. 36; Ayrıca Pîr Hüseyin caminin batı cephesinde yer alan kitabede caminin ilk banisi olarak gösterilmektedir. Kitabe metni için bu çalışmanın ikinci kısmına bakılabilir
5 Eşenlerli, caminin ikinci banisi olarak kitabelerde gösterilmektedir. Kitabelerin metni için bu çalışmanın ikinci kısmına bakılabilir.
6 Ayrıntılı bilgi için bkz. Hüseyin Muşmal, “1867 Konya Çarşısı Yangını ve Etkileri Üzerine Bir İnceleme Denemesi”, Cumhuriyet Üniversitesi Sosyal Bilimler Dergisi, C. 32, No: 1, Sivas 2008, s. 97-116 .
7 İ. Hakkı Konyalı, Abideleri ve Kitabeleriyle Konya Tarihi, Ankara 1997, s. 430-431.
8 BOA, A. MKT. MHM Nr. 391/66; Muşmal, “1867 Konya Çarşısı Yangını”, s. 97 vd.
9 Yüksek Caminin yerine daha sonra bugünkü Aziziye Camii inşa edilmiştir.
10 Selçuk Es, “1284 Konya Çarşısı Yangını”, Şehir Postası, S. 185-193, 17-25 Eylül 1962. (Dizi Yazı)
11 Matlubî Konya’nın Zincirlikuyu Mahallesi’nde Çelebi Sokağında doğmuştur. Gözleri ama olup fakir ve garip bir kişidir. Asıl adı Ömer’dir. 1886-1887 tarihlerinde Konya’da vefat etmiştir. Matlubî hakkında bilgi için bkz. Sadettin Nüzhet, Mehmet Ferit, Konya Vilayeti Halkiyat ve Harsiyatı, (S ad. Prof. Dr. Hüseyin Ayan), Konya 2002, s. 103-107.
12 Matlubî’nin Konya yangını destanında yer alan dörtlüklerin bir kısmında “Ulu camiler uğradı kazaya, yandı ayetler Furkan ağladı”, bir diğerinde “Hakk’ın kullarına oldu in’amı, hikmet ile yandı selâtin cami” denilmekte, bir başka örnekte “Nerde kaldı camilerin ziyneti, çok olurdu müminlerin hürmeti” veya “Gayretde bulundular camiye, yandıksıra ateş döndü maviye” ifadeleri bulunmaktadır. Matlubî’nin ifadelerinden söz konusu yangın neticesinde Konya Çarşısı’nın en önemli yapılarından olan Kapı ve Yüksek camilerinin yanmasının ahali üzerinde çok büyük üzüntülere neden olduğu düşünülebilir. Zira Matlubî bir başka dörtlüğünde şöyle demiştir. “Hanlar şadırvanlar camiler perşan, Heman bir dem etsin Habib-i Zişan, Minareler yerinde kaldı bi-nişan, İmamla müezzin giryan ağladı”. Bkz. Günay Kut, “Bir Cönk Üzerine”, Yazmalar Arasında Eski Türk Edebiyatı Araştırmaları, 1, İstanbul 2005, s. 318-319.
13 Muşmal, “1867 Konya Çarşısı Yangını”, s. 108.
14 Bkz. BOA, A.MKT. MHM, Nr. 406/10, Lef 1.
15 BOA, İrade Şura-yı Devlet, (1.ŞD) Nr. 3/130; lef 1-4.
16 BOA, ŞD, Nr. 1701/56; Caminin hizmete girdiği tarihle ilgili olarak arşiv kayıtlarında kesin bir tarihe şimdilik tesadüf edilmemiştir. Ancak Konya Vilayeti’nden İstanbul’a gönderilen mazbatalara göre 1869 Eylülünde tamamlanmış olduğu söylenebilir.
17 Muşmal, “1867 Konya Çarşısı Yangını”, s. 110
18 BOA, A. MKT. MHM, Nr. 406/10, lef 4.
19 BOA, 1. ŞD, Nr. 3/130, lef 2.
20 BOA, A. MKT. MHM, Nr. 406/10, lef 1.
21 BOA, 1. ŞD, Nr. 3/130, lef 2.
22 BOA, A. MKT. MHM, Nr. 406/10, lef 5.
23 BOA, A. MKT. MHM, Nr. 406/10, lef 4.
24 BOA, 1. ŞD, Nr. 3/130, lef 2.
25 BOA, 1. ŞD, Nr. 3/130, lef 1.
26 BOA, 1. ŞD, Nr. 3/130, lef 3.
27 BOA, A. MKT. MHM, Nr. 391/66.
28 Başmühendis Binbaşı Ahmet Faik Efendi, Yüzbaşı Ahmet Hadi Efendi, Kondoktor Mülazım Osman Efendi ve Orman Mühendisi Rüştü Efendi ve sair üyelerden oluşan bu komisyonun Konya’dan Karaman ve Karaman’dan Silifke İskelesine kadar olan yollar ile Konya’dan Akşehir ve Afyon üzerinden İzmir’e kadar olan araba yollarının tesviyesi ile görevli olduğu anlaşılmaktadır. H.1285 (1868) Konya Vilâyeti Sâlnâmesi, Defa 1, Konya Vilâyet Matbaası, 1285/18691, S. 88; H.1286 (1869) Konya Vilâyeti Sâlnâmesi, Defa 2, Konya Vilâyet Matbaası, 1286/1869, S. 67.
29 Ahmet Hadi Efendi tarafından hazırlanan keşif defterinde yer alan yapının ilk planı için bkz. 1. Şekil.
30 Muşmal, “1867 Konya Çarşısı Yangını”, s.113.
31 Doğan Yörük, “Osmanlı Devleti’nde Kütüphane Yaptırmanın Maliyeti: Konya Yusuf Ağa Kütüphanesi Örneği (1794-1796)”, Manas Üniversitesi Sosyal Bilimler Dergisi, Sayı: 19, Bişkek 2008, s.88.
32 Konya çarşısının yeniden yapıldığı bu dönemde, şehrin kanalizasyon çalışmalarına da başlanmış, kanalizasyon teşkilatı 2 m boyunda ve 1 m genişliğinde olmak üzere, Konya kalesinin kalıntılarından inşa edilmiştir. Bu dönemde çarşı suları ve lağımları da bu kanalizasyona bağlanmıştır. Es, “Konya Çarşısı”, s. 2)
33 Şeyh Ahmet Efendi Cami ve hamamının inşası sürecinde gönderildiği anlaşılan ve 16 numaralı Konya Şer’iye sicilinde kayıtlı olan bir emirde “Konyada ve karîb yerlerde mermer bulunmayub ziyâde müzâyakası olmağla mahmiye-i mezbûrede Sultan Aleaddin Sarayının yeri hâlî ve muattal kalub yerin altında mermer taş var ise ihrâc edüb kifâyet mikdarı bulunur ise” alınabileceği belirtilmektedir. Ancak bu durum hakkında daha sonra tahkikat yapıldığı anlaşılmaktadır. Bkz. Nurcan Abacı, “Sultan IV. Mehmed’in Musâhibi Mustafa Paşa’nın Konya’daki Vakıf Eserleri”, Uludağ Üniversitesi Fen-Edebiyat Fakültesi Sosyal Bilimler Dergisi, S. 6, Bursa 2004, s. 204.
34 Seyyahlar tarafından pek beğenilmeyen bu bina XIX. yüzyılın sonlarında Konya’ya gelen Clement Huart tarafından “Konya’nın bütün geçmişi bu binanın taşları arasında gömülüdür, Gerçekten hükümet konağı bugün yerinde yeller esen Konya surlarının taşları ile örülmüştü” şeklinde tasvir edilmiştir. Clement Huart, Mevleviler Beldesi Konya, (Çev. Nezih Uzel), İstanbul 1978, s.102.
35 İnşatlarda kullanılmak üzere getirilecek olan taşların nakil masraflarının taşın taş ocağından çıkartılma veya mahallinde satın alınma fiyatını 4 veya hatta 6 kat oranında arttırdığı ve bu nedenle taşların tedarikinde ve naklinde yaşanan zorlukları veya maliyeti en aza indirebilmek maksadıyla civarda bulunan eski eserlerin kalıntılarından istifade edildiği bilinmektedir. Ömer Lütfi Barkan, Süleymaniye Cami ve İmareti İnşaatı (1550-1557), C. I, Ankara 1972, s.331-332.
36 BOA, İ. ŞD, Nr. 3/130, lef 1.
37 Yusuf Küçükdağ, “Mevlâna Türbesi ve Çelebi Efendi Konağı Tamiri Defteri”, Konya Şehri’nin Fiziki ve Sosyo-Ekonomik Yapısı, Konya 2004, s.22.
38 Konya’da 1796 yılında tamamlanan Yusuf Ağa Kütüphanesi inşasında Eski-il ve Obruk bölgelerindeki taş ocaklarında taş getirildiği tespit edilmiştir. Bkz. Yörük, “Yusuf Ağa”, s.89.
39 1794-1796 yıllarında Konya’da inşa edilen Yusuf Ağa Kütüphanesi’nin inşası sürecinde, 78 taş arabacısı, 64 karasığır arabacısı, 63 camuz arabacısı ve 73 eşek arabacısının yaklaşık 37.000 sefer yaparak inşa sahasına taş naklettikleri bilinmektedir. Yörük, “Yusufağa”, s. 89-92.
40 Barkan, Süleymaniye Cami İnşaatı, s. 331.
41 Yusuf Ağa Kütüphanesi inşası için taş getiren arabacılara verilen ücrette, taşın getirildiği bölgenin uzaklığına veya niteliğine göre farklılıklar görüldüğü tespit edilmiştir. Araştırmacı bu konuda “Taş arabalarına ödenen ücret miktarında 4 ayrı rakam dikkat çekmektedir. Hoca Cihan’dan 60-70, Obruk’tan 150, Eski-il’den taş getiren arabalara ise 160 para ödenmiştir. Hoca Cihan’ın (5 km.), Obruk’un (69 km.) ve Eski-il’in (115 km.) inşaat alanına uzaklıkları dikkate alındığında bu ücretlerin normal olduğunu anlamak zor olmasa gerektir.” demektedir. Bkz. Yörük, Yusuf Ağa, s. 90; Buradan hareketle Kapı Cami’ne sefer yapan arabalara verilen ücretin 160 para olduğu göz önüne alınarak taşların nereden getirilmiş olabileceği hakkında bir fikir yürütmek mümkündür. Ancak her iki inşaatın arasında 70 yıllık bir zaman aralığı bulunmasının ve inşaatta kullanılan taşların niteliklerinin fiyat farkı oluşturabileceği düşünülerek bu konuda bir tahmin yürütülmemiştir. Üstelik 1770’lerde başlayan ve 1860’lara kadar süren güçlü bir enflasyon dalgasında fiyatlarda önceki dönemlere nazaran 25 kata varan artışlar yaşandığı, ayrıca XVIII. Yüzyıl ortasından XIX. yüzyılın ortasına kadar işçi ücretlerinde de artışlar yaşandığı gözden kaçırılmamalıdır. Şevket Pamuk, Süleyman Özmucur, “Osmanlı İmparatorluğu’nda ve Avrupa’da Ücretler”, Osmanlı Ekonomisi ve Kurumları, İstanbul 2007, s.164, 170.
42 BOA, A.MKT. MHM Nr. 406/10 lef 1
43 Ömür B akırer, Selçuklu Öncesi ve Selçuklu Mimarisinde Tuğla Kullanımı I, Ankara 1981, s.20.
44 BOA, A.MKT. MHM Nr. 406/10 lef 1 vd.
45 BOA, HH, Nr. 10649.
46 1794-1796 yıllarında Konya’da inşa edilen Yusuf Ağa Kütüphanesi’nin inşaatında kullanılan kurşunların bir bölümü Bozkır Madeninden karşılanmıştır. Bkz. Yörük, “Yusuf Ağa”,s, 97.
47 BOA, C.DP, Nr. 2423, HH. 36091 K; 1839 senesinden itibaren uygulanmaya başlayan Maden-i Hümayûn nizamatına göre Beyşehir Sancağı’nda bulunan Bozkır Madeni’nin cevherleri nemasız olup, bunun yanında bazı masraflara da sebep olduğundan imalatın terk olunması kararlaştırılmıştır. BOA, HH, Nr. 27849.
48 Musa Şaşmaz, “İngiliz Konsolosu Stewart’ın Konya Vilayeti’ne Dair Genel Raporu”, Selçuk Üniversitesi Türkiyat Araştırmaları Dergisi, Sayı: 12, Konya 2002, s.62.
49 Cami inşaatında kullanılacak kurşunun talebi hakkında bkz. BOA, ŞD 1702/5; Kurşunların nakliye ve döşeme masrafı ahaliden karşılanmak suretiyle Bulgar Dağı ve Bereketli madeninden temini için verilen müsaade hakkında bkz. BOA, İ. ŞD, Nr. 19/788; Benzer şekilde 1835 yılında Mevlânâ Dergâhı’nın onarımı sırasında kubbeler Bereketli maden ocağından satın alınan kurşunlarla kaplanmıştır. Küçükdağ, “Mevlânâ Dergahı”, s. 22
50 Kıyye, Vukıyye ve Okka’nın her biri 1,282 kg’ye eşit kabul edilmektedir. Bkz. Walter Hinz, “İslâm’da Ölçü Sistemleri” (Çev. Sevim Acar), Türklük Araştırmaları Dergisi, Sayı: 5, İstanbul 1990, s.30; Halil İnalcık, “Osmanlı Metrolojisine Giriş” (Çev. Eşref Bengi Özbilen), Türk Dünyası Araştırmaları, 73, İstanbul 1991, 27-28.
51 11880 yılında İstanbul’daki Maden komisyonu tarafından işletilen Bereketli Madeni’nde çıkarılan Kurşun’un bir kıyyesi, 32 paradan satılmaktadır. Bereketli’den çıkarılan kurşunun İstanbul’a nakledilmesi sırasında bu madene en yakın iskele olan Mersin’e nakil masrafı 1 kıyye de 20 para, İstanbul’a ulaşması ise 120 paradır. Neticede bir kıyye kurşun Tophane-i Amireye 150 paraya (yaklaşık 4 kuruş) satılmaktadır. Bkz. Şaşmaz, “Rapor”, s.63. Kapı Cami inşaatında gerekli olan kurşun miktarı ve maliyeti hesaplanırken kurşunun her bir kıyyesi 5 kuruş üzerinden hesaplanmıştır. Bu durumda söz konusu maliyet hesabının içinde nakil masrafları da yer almaktadır.
52 Yusuf Ağa Kütüphanesi inşaatında kullanılan kireçler Konya, Kavak, Apa, Akviran ve Derbent’ten temin edilmiştir. Yörük,
“Yusuf Ağa”, s.96.
53 Bu Konuda ayrıntılı bilgi için bkz. Remzi Duran, “Osmanlı Dönemi Konya Yapılarında Madeni Pencere Şebekeleri”, Konya
Kitabı X (Rüçhan Arık-M. Oluş Arık’a Armağan), Konya, 2007, s. 291-312.
54 Bu konuda sonraki bölümlerde bilgi verilmektedir.
55 BOA, A.MKT. MHM Nr. 406/10; lef 1-5.
56 1794-1796 yıllarında Konya’da inşa edilen Yusuf Ağa Kütüphanesi inşaatında Konya ve çevresinin yanında İstanbul ve Bozok’tan da ustalar getirilmiştir. Ayrıca Müslüman usta ve işçilerin yanında Rum ve Ermenilerinde çalıştığı tespit edilmiştir. Yörük, “Yusuf Ağa”, s. 97, 103; Diğer taraftan 1550-1557 yıllarında İstanbul’da yapılan Süleymaniye Cami inşaatında Anadolu’dan ve bu arada Konya ve Karaman’dan da usta getirtildiği bilinmektedir. Bkz. Ömer Lütfi Barkan, Süleymaniye Cami ve İmareti İnşaatı (1550-1557), C. I, Ankara 1972, s. 94-95.
57 BOA, ŞD, Nr. 1702/5.
58 Arslanlı Kışla (Saray Kışla) ve Hacı Hasan camileri, Konya’da platform üzerinde inşa edilmiş diğer örneklerdir. Ancak Arslanlı Kışla ve Hacı Hasan camilerinde platform oluşturmak için kullanılan bölüm, depo ve yardımcı hizmet mekânı olarak kullanılırken; Kapı Cami’nde durum farklıdır. Burada yapının ticari doku içerisinde yer almasından kaynaklanan bir özellik sonucunda, alt katta dükkânlara yer verilmiştir.
59 Konyalı olan Şevki’nin, Şerafeddin Cami’nde müezzinlik yaptığı ve 1305/1887-8 tarihinde vefat ettiği tahmin edilmektedir. Şevki hakkında bilgi ve bir şiiri için bkz. Sadettin Nüzhet Ergun-Mehmet Ferit Uğur, Konya Vilayeti Halkiyat ve Harsiyatı, (Sadeleştiren Prof. Dr. Hüseyin Ayan), Konya, 2002, s. 187; Aziz Ayva, Konya Âşıklık Geleneği Ve Âşık Ataroğlu, Hayatı, Sanatı, Şiirleri, Şiirlerinin Tahlili, Selçuk Üniversitesi Sosyal Bilimler Enstitüsü, Yayınlanmamış Doktora Tezi, Konya 2005, s. 205.
60 Şevki hakkında, bir önceki dipnotta kısa bilgi verilmiştir. Kapı Cami kitabesinde yer alan bu beyitler de Şevki hakkında literatüre bir örnek olarak eklenebilir.
61 Ke’ş-şemsi’d-duhâ ifadesi ebced hesabına göre H. 1300 tarihini vermektedir. Bu ifadeden yola çıkılarak kitabenin yapılış tarihinin H. 1300 /M. 1882/1883 olduğu tahmin edilebilir. Bu tarih şiirin yazarı olan Şevki’nin hayatta olduğu bir döneme ait olmakla birlikte, caminin hizmete açılışından yaklaşık 15 yıl sonrasına denk düşmektedir. Bu durum iki olasılığı akla getirmektedir: Bunlardan birincisi tarihin yanlış düşürülmüş olabileceği; ikincisi de kitabenin H. 1300 tarihinde yerleştirilmiş olduğudur.
62 Kitabelerin okunmasında yardımlarını esirgemeyen Prof. Dr. Mikail B ayram, Doç. Dr. İzzet SAK, Doç. Dr. Ahmet ÇAYCI ve Yrd. Doç. Dr. İbrahim KUNT’ a teşekkür ederiz.
63 Yapının pencere şebekeleri pek çok onarım ve değişikliklerle günümüze gelebilmiştir. Yapının pencere şebekeleri hakkında bilgi için bkz. Remzi Duran, “Osmanlı Dönemi Konya Yapılarında Madeni Pencere Şebekeleri”, Konya Kitabı X (Rüçhan Arık-M. Oluş Arık’a Armağan), Konya, 2007, 296.
64 Bu konuda çalışmanın birinci kısmına bakılabilir.
65 Charles Texier bu konuda ayrıntılı bilgiler veren seyyahların başında gelmektedir. 1831 yılında Konya’ya gelen Texier, “Alâeddin’in yaptırmış olduğu surlar, şu anda hala iyi bir durumda kalmıştır. Bunlar, her kırk adımda bir yapılmış dört köşe kulelerle korunmuştur; etrafında hendeği de vardır. Cephesinde yedi-sekiz metre yüksekliğinde beyaz mermerden büyük bir kitabe görülür. Bunun üzeri, kabartma yazılarla doludur. Kuleler, çok düzgün kesme taşlardan yapılmıştır. Bunların içinde, daha eski eserlerden alınmış birçok taşlar, Bizans yazılarını içeren levha parçaları, sütun başlıkları ve gövdeleri de vardır.” şeklinde bilgi verip, özellikle bir sanat galerisi durumundaki şehir kapılarının gravürlerini de hazırlamıştır. Bkz. Charles Texier, Küçük Asya – Coğrafyası, Tarihi ve Arkeolojisi, C. 3, (Çev. Ali Suat), Ankara 2002, Bölüm: 22.
66 “Düğümlü sütunların Anadolu’da bilinen örneklerinin çoğu, kilise içlerinde kutsal mekânı (apsis ve bema) naostan ayıran ve sonraları ikonalarla kaplandıkları için ikonastasis olarak adlandırılan, Bizans döneminin templonlarına aittirler. Bu templon sütunları üstte bir arşitravla birbirine bağlanırlar ve aşağıda aralarında korkuluk levhaları bulunurdu. Kuskusuz templon sütunları her zaman düğümlü olmazlardı. Ancak, templon arşitravının taşıyıcıları olan düğümlü sütunların bugün bilinen örneklerinin çoğu sekiz ya da dört sütunludur.” Düğümlü sütunlar ve bunların kullanım alanları için bkz. Zeynep Mercangöz, “Akhisar Ulu Camii İçindeki Düğümlü Bizans Sütunları”, Sanat Tarihi Dergisi VII, İzmir 1994, s. 153.
67 Mercangöz, yukarıda belirtilen makalesinde “Konya Alâeddin Camii harimindeki devşirme sütunlardan dört Bizans sütunu ise düğümlü dörtlü sütunlardır” ifadesine yer vermiştir. Ancak Alâeddin Cami’nde gerçekleştirdiğimiz çalışmalarda beş adet düğümlü sütun tespit edilmiştir.
68 Ne Kapı Cami’nde ne de Alâeddin Cami’nde kullanılan sütunların nereden getirildikleri konusunda her hangi bir bilgi bulunmaktadır. Ancak kullanılan sütunların boyutları dikkate alındığında çok büyük ölçekli Bizans yapılarından devşirilmiş oldukları fikri akla yatkın gelmektedir. Konya çevresinde yapılacak ayrıntılı çalışmalar sayesinde bu sütunların kaynağı konusunda bilgi edinme imkânının doğması temennimizdir.
69 Ashab-ı Keyfin isimleri: Yemliha, Mekselina, Meslina, Mernuş, Debernuş, Şabnuş, Kıtmür.
70 Sille’li olan Zehri’nin asıl adı Bekir’dir. Ama olan Zehri güzel saz çalıp türkü söylediği bilinmektedir. Destan, koşma, türkü gibi birçok Halk Edebiyatı eserleri vermiş olan Zehri’nin 1322/1904 yılında öldüğü tahmin edilmektedir. Bkz. Sadettin Nüzhet Ergun- Mehmet Ferit Uğur, Konya Vilayeti Halkiyat ve Harsiyatı, (Sadeleştiren Prof. Dr. Hüseyin Ayan), Konya, 2002, s. 202-206; Aziz Ayva, Konya Âşıklık Geleneği, s. 253-254.
71 Zehri hakkında bir önceki dipnotta kısaca bilgi verilmiştir. Kapı Cami kitabesinde bulunan bu şiir de Zehri’nin şiirlerine bir örnek teşkil etmektedir.
72 İçten bağdadi kubbe dışarıdan kırma çatı uygulaması Konya’da Osmanlı dönemine ait, özellikle orta ölçekli mahalle mescitlerinde karşımıza çıkan bir uygulamadır. Çaybaşı Burhan Dede ve Sarı Yakup Camileri bağdadi kubbe-kırma çatı uygulamasına ait örneklerdendir.
73 Bkz. Mehmet Önder, Mevlana Şehri Konya, Ankara 1976, s. 247.
74 H. Örcün Barışta, “Selçuklu Ahşap İşçiliğinden Bazı Örnekler ve Tanınmamış Birkaç Parça Üzerine”, I-II. Milli Selçuklu Kültür ve Medeniyeti Semineri Bildirileri, Konya 1993, s. 95
75 Barışta, “Ahşap İşçiliği”, s. 96
76 Bu konuda bu çalışmanın birinci kısmına bakılabilir.
77 Mahfil çıkmasının alt yüzlerinde benzer kompozisyonda yapılan bezeme programı Konya’daki pek çok yapıda görülmektedir (Sedirler Hatıp, Karakayış Sarı, Nakipoğlu Camii gibi). Ayrıntılı bilgi için bkz. Mustafa Çetinaslan, Konya Camilerinde Mahfiller, (S.Ü. Sosyal Bilimler Enstitüsü Yayınlanmamış Yüksek Lisans Tezi), Konya 2005.
78 Mehmet Önder, caminin kalemisi süslemeleri ile yağlı boya işlerinin Hamdizade Mahbub Efendi tarafından yaptırıldığını belirtmektedir. Bkz. Mevlana Şehri Konya, s. 247. Ancak camide gerçekleştirdiğimiz çalışmalarda Mahbub Efendi’nin imzası ya da kitabesine rastlanılmamıştır. Mahbub Efendi hakkında bir makale kaleme alan Hasan Özönder, “Mahbub Efendi Konya’da Şerafeddin, Aziziye (kısmen), Sultan Selim, Mevlana mescid ve sema-hanesi, Dursunoğlu, Dolap, Kışla, Namık Pasa; Isparta’da Çelebiler Mahallesi Mescidi’nde; Nevşehir’de Kurşunlu camilerinde imzalarını koymuştur.” şeklinde bilgi vermektedir. Belirtilen yapılar arasında Kapı Cami’inin adının geçmemesi ve yapıda da Mahbub Efendi’nin adını taşıyan bir yazıt bulunmaması, Önder tarafından verilen bilgiye ihtiyatla yaklaşılmasını gerekli kılmaktadır. Mahbub Efendi’nin kişiliği ve eserleri hakkında ayrıntılı bilgi için bkz. Hasan Özönder, Mevlana Türbesi Mescid ve Sema-Hanesi’nin Son Nakkaş ve Hattatı Konyalı Mahbub Efendi, Selçuk Üniversitesi Türkiyat Araştırmaları Enstitüsü Türkiyat Araştırmaları Dergisi, Sayı: 1, Konya 1994, s. 93-108.
79 Ali Baş, “Konya’daki Osmanlı Camileri”, Osmanlı Döneminde Konya, Konya 2003, s. 262.
80 Yapının geçirdiği restorasyonlarla ilgili bilgiler, Konya Vakıflar Bölge Müdürlüğü’nün arşivinden faydalanılarak özet olarak derlenmiştir.
81 Konyalı, Konya Tarihi, s. 430
82 Konyalının kaydettiğine göre, 1811 yılında camiyi yenileyen Köse Abdurrahman Efendi tarafından bırakılan beş bin altınlık vasiyet, Abdurrahman Efendi’nin torunları tarafından yeni caminin yapımı için verilmiştir. Konyalı, Konya Tarihi, s. 430-431. Halkın yardımları ile ilgili ayrıntılı bilgi bu çalışmanın ilk bölümünde verilmiştir. Ancak arşiv belgelerinde Konyalı’nın bahsettiği duruma dair bir bilgiye tesadüf etmek şimdilik mümkün olmamıştır.
83 Bkz. BOA, A.MKT. MHM, Nr. 406/10, Lef 1.
84 Daha önce ifade edildiği gibi 1831 yılında şehre gelen Texier surların sağlam durumda olduğunu belirtirken, 1891 yılında Konya’ya gelen C. Huart Konya surlarının yerinde artık yeller estiğini söyleyecektir. Huart, bu tarihte Konya surlarından geriye kalan tek eserin Larende Kapısı olduğunu, bu kapının da sadece temellerinin kaldığını ifade etmiştir. Ayrıntılı bilgi için bkz. Clement Huart, Mevleviler Beldesi Konya, (Çev. Nezih Uzel), İstanbul 1978; Yaklaşık 60 yıllık bir süreçte Konya Şehri büyük bir değişim geçirmiştir. Bunun nedenleri arasında şüphesiz ki, 1867 yangının ve bu yangının ardından gerçekleşen yoğun inşa faaliyetlerinin de büyük payı olmalıdır.
85 Keşif Defterinde yer alan planın, yapının yangından önceki mevcut temel izlerine dayanılarak düzenlenmiş olma ihtimali de göz ardı edilmemelidir.
86 Kuzey ve güney beden duvarları içten içe 33.83 m. iken, doğu duvarı 28.33 m., batı duvarı ise 31.36 m. ölçüsündedir. Ölçülerden de anlaşılacağı üzere yapının harimi tam kare olmayıp, doğu ile batı beden duvarları arasında 3.03 m.lik bir fark bulunmaktadır.
87 Bu konuda birinci bölümde bilgi verilmektedir.
88 Caminin üst örtüsünün kubbeli olarak yapılması halinde yaklaşık 90.000 kuruşluk ek bir maliyet ortaya çıkmaktadır. Bu konuda birinci bölüme bakılabilir
Kapu Camii Kürsüsünden
























